|
Продукция ООО "МЗ "ПОТОК" включена в реестр Российской промышленной продукции в соответствии с ПП РФ № 719 от 17.07.2015г. |
|
МЕТОДИЧЕСКИЕ РЕКОМЕНДАЦИИ ПО ПРОЕКТИРОВАНИЮ СИСТЕМ УДАЛЕНИЯ И ПЕРЕРАБОТКИ НАВОЗНЫХ СТОКОВ НА СВИНОКОМПЛЕКСАХ ПРОМЫШЛЕННОГО ТИПА
Министерство сельского хозяйства Российской Федерации, Москва 2009 г.
Издание подготовлено под руководством директора ВНИИЖа, чл.-кор. РАСХН Виноградова В.Н., заместителя директора Департамента научнотехнологической политики и образования Минсельхоза России - д.э.н. Сорокина Н.Т., заведующего Селекционно-технологическим центром по свиноводству (СТЦ) ВНИИЖа - Ильина И.В., ведущими научными сотрудниками, канд.с.-х.наук Смолинским Е.А., и канд.с.-х.наук Курячим М.Г., старшими научными сотрудниками: Афанасьевым В.В., канд.с.-х.наук Тоховым М.Х., Морозовым А.И., Шамолиной Е.А., ведущими специалистами ООО «АгроПроектИнвест» (г.Москва): Репертом В.В., Афанасьевой Т.В., Беляковым И.Н. Лапинским Е.С., ведущим специалистом ГНУ ГОСНИТИ канд.тех.наук Пузанковым А.Г.
Рецензенты:
Трифонов А.В.- зам. директора по научной работе, зав.лабораторией технологий и технических средств производства свинины, к.т.н. ГНУ СЗЦИИМЭСХ Ковалев Д.А. – зав. лабораторией, к.т.н. ГНУ ВИЭСХ.
«Методические рекомендации по проектированию систем удаления и переработки навозных стоков на свинокомплексах промышленного типа», ФГНУ «Росинформагротех» 2009.
Настоящие методические указания рассчитаны на специалистов-проектировщиков свиноводческих промышленных предприятий, руководителей и специалистов отрасли свиноводства.
В настоящее время государственной политикой является приоритетное решение проблем охраны окружающей среды и создание благоприятных условий для обитания человека.
Организация систем сбора, удаления, хранения и использования промышленных стоков свиноводческих предприятий разной мощности выполняемая в соответствии с настоящими рекомендациями как раз и направлена на реализацию этих приоритетов государства.
Рекомендации включают не только технические и технологические решения этих систем, но и сравнительный анализ их между собой, новые рекомендации по расчетам потребности в воде на поение животных, уборку помещений, уровням и технологиям использования получаемых из отходов органических удобрений.
В рекомендациях приведены иллюстрации ряда реализованных проектных решений на действующих свиноводческих предприятиях, что, авторы уверены, вызовет интерес у читателей.
Методические рекомендации по проектированию систем удаления и переработки навозных стоков на свинокомплексах промышленного типа
1. Общие указания
1.1. Настоящие методические рекомендации распространяются на проектирование систем удаления и переработки навозных стоков вновь организуемых и реконструируемых свинокомплексов промышленного типа.
1.2. При проектировании систем удаления и переработки навозных стоков свинокомплексов промышленного типа, а также отдельных зданий и сооружений, входящих в их состав, кроме настоящих норм следует руководствоваться следующими нормативными документами:
- Новая редакция СанПиН 2.2.1./2.1.1.1200-3 «Санитарно-защитные зоны и санитарная классификация предприятий, сооружений и иных объектов», разработанная в связи с необходимостью введения новой процедуры установления размеров и границ санитарно-защитных зон в соответствии с «Правилами подготовки нормативных правовых актов и их государственной регистрации», утвержденных постановлением Правительства Российской Федерации от 13.08.1997 № 1009;
- Постановление Правительства Российской Федерации №87 от 16 февраля 2008г. «О составе разделов проектной документации и требованиях к их содержанию»;
- ГОСТ 21.101-97 Межгосударственный стандарт «Система
проектной документации для строительства. Основные требования к проектной и
рабочей документации»;
- ГОСТ 21.508-93 Межгосударственный стандарт «Система
проектной документации для строительства. «Правила выполнения рабочей документации
генеральных планов предприятий, сооружений и жилищно-гражданских объектов»;
- СНиП II-97-76 «Генеральные планы сельскохозяйственных
предприятий»;
- НТП-АПК 1.10.02.001-00. «Нормы технологического
проектирования свиноводческих ферм и крестьянских хозяйств»;
- РД-АПК 1.10.15.02-08 «Методические рекомендации по
технологическому проектированию систем удаления и подготовки к использованию
навоза и помета»;
- НТП-АПК 1.10.07.001-02 «Нормы технологического
проектирования ветеринарных объектов для животноводческих, звероводческих,
птицеводческих предприятий и крестьянских хозяйств»;
- НТП-АПК 1.10.07.003-02. «Нормы технологического
проектирования станций и пунктов искусственного осеменения животных»;
- НТП-АПК 1.10.16.001-02. «Нормы технологического проектирования
кормоцехов для животноводческих ферм и комплексов»;
- ППБ 01-03. «Правила пожарной безопасности в Российской
Федерации»;
- НПБ 201-96. «Пожарная охрана предприятий. Общие
требования»;
- НПБ 88-2001. «Установки пожаротушения и сигнализации.
Нормы и правила проектирования»;
- СП 11-107-98. «Порядок разработки и состав раздела
"Инженернотехнические мероприятия гражданской обороны. Мероприятия по
предупреждению чрезвычайных ситуаций" проектов строительства»;
- НТПС-88. «Нормы технологического проектирования
электрических сетей сельскохозяйственного назначения»;
- ПУЭ. «Правила устройства электроустановок»;
- ПТЭ. «Правила эксплуатации электроустановок потребителей»;
- ПТО РО 006-2003 «Правила по охране труда в
животноводстве»;
- ТОИ Р-019-98 «Типовая отраслевая инструкция по охране
труда в животноводстве. "Свиноводство";
- ОСН-АПК 2.10.24.001-04 «Нормы освещения
сельскохозяйственных предприятий, зданий и сооружений» и другими действующими нормами строительного проектирования.
В качестве информационно-справочной документации рекомендуется использовать ВНТП 2-96 «Ведомственные нормы технологического проектирования свиноводческих предприятий».
1.3. Проектирование систем удаления и переработки навозных стоков свинокомплексов промышленного типа необходимо осуществлять с учетом их экологической безопасности и увязкой с вопросами природопользования, а также технологическими, зоотехническими, экономическими, санитарно–ветеринарными, гигиеническими и социально–экологическими требованиями.
1.4. Системы удаления и переработки навозных стоков свинокомплексов промышленного типа должны обеспечивать:
- рациональное использование природных ресурсов,
восстановление экологического равновесия и предотвращение распространения
возбудителей (опасных для здоровья человека) инвазионных и инфекционных
болезней в зоне влияния свинокомплексов промышленного типа;
- надежность и безопасность обслуживания;
- снижение сметной стоимости нового строительства и
реконструкции очистных сооружений и систем подготовки навоза и навозных стоков
к использованию;
- безотходная переработка и рентабельное производство
высококачественных и высокоэффективных органических, органоминеральных и других
видов удобрений;
- высокий агрономический, экономический и социальный эффект
за счет безотходной переработки и рационального использования навоза и помета и
увеличения урожайности с.-х. культур.
1.5. Проекты систем удаления и переработки навозных стоков свинокомплексов промышленного типа должны разрабатываться на базе современных прогрессивных и эффективных технологий, технических решений, технологического оборудования, обеспечивающих:
- экономичность строительства и эксплуатации сооружений;
- подготовку к использованию навозных стоков в качестве
экологически безопасного органического удобрения сельскохозяйственных угодий и
почвы непосредственно или путем производства комплексных органических или
органоминеральных удобрений;
- выполнение ветеринарно-санитарных и
санитарно-гигиенических требований эксплуатации свинокомплексов промышленного
типа при минимальных расходах воды;
- гарантированную охрану окружающей природной среды от
загрязнения навозными стоками и продуктами их переработки;
- высокий уровень механизации и автоматизации
производственных процессов удаления и переработки навозных стоков свинокомплексов
промышленного типа.
1.6. Выбор системы удаления и переработки навозных стоков свинокомплексов промышленного типа следует производить на основе технико-экономического сравнения вариантов с учетом:
- специализации, типоразмера свинокомплексов;
- технологии содержания и выращивания свиней;
- климатических, почвенных и гидрогеологических условий,
рельефа местности применительно к условиям утилизации навоза и помета;
- состояния объектов окружающей природной среды.
Размеры земельных площадей, необходимых для утилизации навоза и сточных вод свинокомплексов промышленного типа в качестве удобрения, определяются с учетом способов подготовки органических отходов. Площадь сельскохозяйственных угодий должна быть достаточной для экологически безопасного использования навозных стоков в качестве удобрения.
1.7. Проектирование каждого свинокомплекса промышленного типа следует начинать с выбора земельного участка, расположение которого увязывают с перспективным планом развития участка, санитарно-гигиеническими и противопожарными нормами.
Для каждого свинокомплекса промышленного типа, являющегося источником воздействия на среду обитания, разрабатывается проект обоснования размера санитарно-защитной зоны. В проекте санитарно-защитной зоны должны быть определены:
-размер и границы санитарно-защитной зоны;
-мероприятия по
защите населения от воздействия выбросов вредных химических примесей в
атмосферный воздух и физического воздействия;
-функциональное зонирование территории санитарно-защитной
зоны и режим ее использования.
Ориентировочный размер санитарно-защитной зоны по классификации должен быть обоснован проектом санитарно-защитной зоны с расчетами ожидаемого загрязнения атмосферного воздуха (с учетом фона) и уровней физического воздействия на атмосферный воздух и подтвержден результатами натурных исследований и измерений.
Санитарно-защитная зона каждого свинокомплекса промышленного типа разрабатывается последовательно:
- расчетная (предварительная) санитарно-защитная зона,
выполняемая на основании проекта с расчетами рассеивания загрязнения
атмосферного воздуха и физического воздействия на атмосферный воздух (шум,
вибрация, ЭМП и др.);
- установленная (окончательная) - на основании результатов
натурных наблюдений и измерений для подтверждения расчетных параметров.
Критерием для определения размера санитарно-защитной зоны является не превышение на ее внешней границе и за ее пределами ПДК (предельно допустимых концентраций) загрязняющих веществ для атмосферного воздуха населенных мест, ПДУ (предельно допустимых уровней) физического воздействия на атмосферный воздух.
В зависимости от мощности, условий эксплуатации, характера и количества выделяемых в окружающую среду загрязняющих веществ, создаваемого шума, вибрации и других вредных физических факторов, а также с учетом предусматриваемых мер по уменьшению неблагоприятного влияния их на среду обитания и здоровье человека в соответствии с санитарной классификацией промышленных объектов и производств установлены следующие ориентировочные размеры санитарно-защитных зон:
- промышленные объекты и производства первого класса – 1000 м;
- промышленные объекты и производства второго класса – 500 м;
- промышленные объекты и производства третьего класса – 300 м;
- промышленные объекты и производства четвертого класса – 100 м;
- промышленные объекты и производства пятого класса – 50 м;
В соответствии с СанПиН 2.2.1./2.1.1.1200-3 «Санитарно-защитные зоны и санитарная классификация предприятий, сооружений и иных объектов» п. 1.8. для свиноводческих предприятий (объектов свиноводческих предприятий) введена следующая классификация :
Объекты и производства агропромышленного комплекса и малого предпринимательства (свиноводство).
КЛАСС I - санитарно-защитная зона 1000м.
1. Свиноводческие комплексы.
2. Открытые хранилища навоза.
КЛАСС II - санитарно-защитная зона 500 м.
1. Свинофермы от 4 до 12 тыс. голов
2. Открытые хранилища биологически обработанной жидкой
фракции навоза.
3. Закрытые хранилища навоза.
КЛАСС III - санитарно-защитная зона 300 м.
1. Свинофермы до 4 тыс. голов.
2. Площадки для буртования навоза.
3. Гаражи и парки по ремонту, технологическому обслуживанию
и хранению грузовых автомобилей и сельскохозяйственной техники.
КЛАСС IV - санитарно-защитная зона 100м.
1. Мелиоративные объекты с использованием животноводческих
стоков.
2. Цехи по приготовлению кормов, включая использование
пищевых отходов.
3. Хозяйства с содержанием животных (свинарники, коровники,
питомники, конюшни, зверофермы) до 100 голов.
4. Склады горюче-смазочных материалов.
КЛАСС V - санитарно-защитная зона 50 м.
1. Хозяйства с содержанием животных (свинарники, коровники, питомники, конюшни, зверофермы) до 50 голов.
Размер санитарно-защитной зоны для действующих свиноводческих ферм и комплексов может быть уменьшен при:
- объективном доказательстве достижения уровня химического, биологического загрязнения атмосферного воздуха и физических воздействий на атмосферный воздух до ПДК и ПДУ на границе санитарно-защитной зоны и за ее пределами по материалам систематических лабораторных наблюдений для предприятий I и II класса опасности (не менее пятидесяти исследований на каждый ингредиент в отдельной точке) и измерений и оценке риска для здоровья; для промышленных объектов и производств III, IV, V класса опасности по данным натурных исследований приоритетных показателей за состоянием загрязнения атмосферного воздуха (не менее тридцати исследований на каждый ингредиент в отдельной точке, за исключением зимнего периода) измерений;
- подтверждении измерениями уровней физического воздействия на атмосферный воздух на границе санитарно-защитной зоны до гигиенических нормативов и ниже;
- уменьшении мощности, изменении состава, перепрофилировании промышленных объектов и производств, и связанным с этим изменением класса опасности;
- внедрении передовых технологических решений, эффективных очистных сооружений, направленных на сокращение уровней воздействия на среду обитания.
Размер санитарно-защитной зоны для проектируемых и действующих свинокомплексов промышленного типа может быть увеличен по сравнению с классификацией, полученной расчетным путем и/или по результатам натурных наблюдений и измерений для предприятий I и II класса опасности Главным государственным санитарным врачом Российской Федерации; для предприятий III, IV, V классов опасности по результатам натурных наблюдений и измерений Главным государственным санитарным врачом субъекта Российской Федерации или его заместителем. Для существующих предприятий при их реконструкции и расширении размеры санитарно-защитных зон могут быть увеличены или сокращены с учетом сложившихся конкретных условий и устанавливаться по согласованию с местными органами Государственного санитарного и ветеринарного надзора.
Вдоль границ территории свинокомплексов промышленного типа, очистных сооружений, и, по возможности, между отдельными зданиями следует создавать зеленую зону из древесных насаждений.
На границе санитарно-защитных зон шириной более 100 м со стороны селитебной зоны должна предусматриваться полоса древесно-кустарниковых насаждений шириной не менее 30 м, а при ширине зоны от 50 до 100 м - полоса шириной не менее 10 м.
2. Системы сбора и удаления навозных стоков.
2.1 Применяемые в настоящее время способы и технологии удаления из свиноводческих помещений навоза по принципу действия и конструктивным решениям подразделяются на механические, самотечные непрерывного действия, самосплавные системы периодического действия (в т.ч. самосплавные) и гидросмывные.
Нормами технологического проектирования систем удаления и подготовки к использованию навоза и помета (РД-АПК 1.10.15.02-08 «Методические рекомендации по технологическому проектированию систем удаления и подготовки к использованию навоза и помета») определено, что:
- механические способы удаления и транспортирования навоза следует проектировать на свиноводческих предприятиях мощностью до 24 тысяч голов в год, использующих корма собственного производства и пищевые отходы;
- самотечную систему навозоудаления непрерывного действия следует применять в свинарниках при кормлении животных текучими и сухими кормами без использования силоса и зеленой массы. При этом самотечную систему не рекомендуется применять в свинарниках-маточниках.
- самотечная система навозоудаления периодического действия может применяться на всех животноводческих предприятиях при бесподстилочном содержании животных.
- гидросмывную систему удаления и транспортирования навоза допускается применять в исключительных случаях и только при реконструкции и расширении действующих крупных свиноводческих предприятий на 54 и более тыс. свиней в год при невозможности применения других способов и технических средств для удаления навоза. Установлено, что применение гидросмывной системы удаления навоза для нового строительства допускается при соответствующем обосновании и согласовании с органами государственного экологического и санитарного надзора.
2.2. Самосплавные системы периодического действия.
2.2.1. В последнее время для удаления навоза из свинарников наибольшее распространение получили самосплавные системы периодического действия, принципиальная схема (фрагмент) которой приведены на рис. 1 и 2.
Самосплавные системы периодического действия предназначены для сбора и удаления из производственных помещений свинокомплексов промышленного типа безподстилочных и подстилочных навозных стоков.
В таких системах традиционные продольные каналы навозоудаления в свинарниках заменяют навозосборными ваннами.
Площадь каждой ванны не превышает 35м2, ширина не менее ¼ длины ванны, а глубину принимают из расчета сбора 2-х недельного количества навоза (около 0,5-0,8 м).

Рис. 1. Принципиальная схема навозосборной ванны системы навозоудаления.
В центре каждой навозосборной ванны предусмотрен приямок для сбора жижи размерами в плане 0,5 × 0,5 м и глубиной 0,1 м. Приямок соединен со сливным трубопроводом для выпуска навоза в коллектор. Сливное отверстие трубопровода плотно закрывается специальной пробкой.
Перед началом использования данной системы важно, чтобы следующие пункты точно соблюдались:
1. Все навозные ванны должны быть очищены от инородных тел.
2. Перед использованием все пробки должны быть очищены, особенно
необходимо следить за чистотой колец из пористой резины. По необходимости
кольца смазываются.
3. Необходимо следить затем, чтобы все навозные переходники
не были засорены бетоном, особенно раструбы (поверхность соприкосновения пробки
с переходником).
4. Навозные ванны при запуске системы необходимо наполнить
водой для пропитки бетона.
5. Необходимо сделать пометки на решетках пола, где
находятся пробки. Поверните ручку пробки так, чтобы она стояла поперек паза
решетки. Так будет легче ее найти.
Когда система находится в эксплуатации, то должны соблюдаться следующие правила:
1. Навоз должен отводиться каждые 14 дней. Старый навоз
образует больше сероводорода. Образование корки уменьшается при регулярном
опорожнении. Навозные ванны не должны быть переполнены, так как это может
привести к поднятию пробок в опорожненных чашах.
2. Опорожнение навозных чаш следует начинать с открытия
самой дальней от выхода пробки.
3. Нельзя опорожнять несколько навозных ванн одновременно.
Опорожнять следующую ванну следует только после того, как была полностью
опорожнена предыдущая чаша. Опорожнение одной ванны занимает 2-3 минуты.
4. В течении 2-3 минут, пока происходит слив навоза в
навозоотводящие трубы, отключите вентиль подачи воды для питья и автомат
кормления.
5. Во время отвода жидкого навоза проверьте работу
вентиляции.
6. После отвода навоза необходимо вставить пробки на место и
проконтролировать их правильное положение.
7. Никогда не пытайтесь остановить отвод навоза, при помощи
пробки. Отсасывающая сила очень велика, поэтому пробки могут быть повреждены.
8. Не бросай инородные тела в навозные ванны, так как
возможно образование пробок (закупорка).
2.2.2. Система самосплавного навозоудаления периодического действия при бесподстилочном содержании свиней состоит (рис. 2) из навозоприемного канала разделенного бетонными перегородками на ванны. Размеры ванн зависят от размеров и расположения станков для содержания свиней, а также от размеров панелей решетчатого пола. Дно ванны выполняется без уклона. Под каждым навозоприѐмным каналом проложен пластиковый продольный коллектор, состоящий из пластиковых канализационных труб диаметром 200…315мм. Навозоприемные каналы в свинарниках для содержания всех половозрастных групп свиней должны быть перекрыты панелями решетчатого типа.

Рис. 2.
Принципиальная схема самосплавного навозоудаления периодического действия
1 –
Ванна; 2 – Задвижка; 3 – Решетка; 4 – Отвод; 5 – Поперечный коллектор; 6 –
Продольный коллектор; 7 – Тройник; 8 – Перегородка ванны; 9 – Приямок; 10 – Воздушный
клапан.
Каждая бетонная ванна соединена с
пластиковым продольным коллектором через пластиковый тройник, находящийся в
средней части ванны. Отверстие каждого тройника закрывается заслонкой
пробкового типа. Вокруг каждого тройника с заслонкой имеется приямок 500х500мм
или радиусом 500мм и глубиной 100мм.
В начале
каждого продольного коллектора имеется воздушный клапан.
Пластиковые продольные коллектора
соединяются с поперечным коллектором через пластиковый переходник, отвод или
тройник. Пластиковый коллектор прокладывается под навозоприемным каналом с
уклоном i=0,005 в сторону поперечного коллектора (магистрального трубопровода
наружней канализационной системы) или навозоприемника находящегося за пределами
свинарника.
Пример применения данной технологии приведѐн на рис.3, 4.

Рис.3 Устройство сборных коллекторов и накопительных ванн
Рис.4 Пример устройства сборных коллекторов, накопительных ванн, щелевых полов и системы трубопроводов здания ожидания, осеменения и ранней супоросности (проект в Курской области).




При невозможности соблюдения соотношения между длиной и шириной ванны навозоудаления (ширина не менее ¼ длины ванны), что возможно при проведении реконструкции существующих зданий и сооружений, используется метод установки двух выпускных пробок (и, соответственно, двух коллекторов) в одной ванне (рис. 5).

Рис. 5 Пример установки двух выпускных пробок (и, соответственно, двух коллекторов) в одной ванне в здании опроса при реконструкции.
2.2.3. Система самосплавного навозоудаления периодического действия предназначена так же для тех свиноферм, где используется большое количество подстилочной соломы.
В данном случае (рис.6) система состоит из стандартной системы самосплавного навозоудаления, а также 110 или 160 мм напорной системы с шлюзовым вентилем. С одной стороны навозной ванны устанавливается выпускная система, а в противоположной стороне монтируется система напорных труб с шлюзовым вентилем (SV вентиль. Навозная ванна должна быть глубиной от 60 см, и тройники с пробками располагаются в ”чаше” глубиной 20 см.
После окончания опорожнения ванна снова наполняется жидким перемешанным навозом (примерно на глубину10 см).
Для измельчения подстилочной соломы и получения равномерной массы в насосных станциях используются насосы с встроенными режущими кромками. Данный метод способствует тому, что в свинарнике может использоваться солома в виде подстилки для свиней. После 14 дней каналы опорожняются, и снова наполняется жидким навозом.

Рис. 6. Применение системы самосплавного навозоудаления периодического действия при содержании свиней на подстилке.
Недостатком данной системы является значительное усложнение и, соответственно, удорожание системы навозоудаления.
2.2.4. Система самосплавного навозоудаления периодического действия возможна как самотечная до канализационных насосных станций при каждом свинарнике, самотечная до канализационных насосных станций при группе свинарников или всех зданий свинокомплекса в целом или система самосплавного удаления навоза вплоть до навозохранилищ.
Система самосплавного удаления навоза вплоть до навозохранилищ (без устройства промежуточных перекачивающих станций) применяется в тех местах, где рельеф местности имеет достаточные перепады высот на этом маршруте.
2.2.5. Сбор навозных стоков в навозные ванны системы самосплавного навозоудаления периодического действия осуществляется через щелевые полы.
Применение щелевых полов является общепринятым техническим решением в современном свиноводстве. Они обеспечивают возможность применения системы навозоудаления, значительно ускоряют и облегчают работу персонала на самом тяжелом участке: поддержание чистоты и гигиены в помещениях. Щелевые полы отвечают существующим требованиям по прочности и долговечности, обеспечивают комфортные условия для содержания животных, прекрасно чистятся и дезинфицируются, предотвращают возникновение основных болезней животных. Применение щелевых полов может быть внедрено для всех возрастных групп свиней на всех фазах их содержания, выращивания и откорма.
При проектировании свиноводческих комплексов применяются три основных типа щелевых полов: бетонные, пластиковые и металлические.
Бетонные щелевые полы
Использование щелевых полов из бетона – оптимальное техническое решение для свиноводства. Бетонные щелевые полы хорошо зарекомендовали себя при бесподстилочном содержании свиней, они прочны и являются самыми дешевыми в изготовлении. Однако их применение ограничено. Они не могут применяться в маточниках и помещения для доращивания, поскольку не выдерживают технологических требований по температуре. Зато они успешно применяются в помещениях для содержания холосто-супоросных свиноматок в группах и индивидуально, а также свиней на откорме.
Все щелевые панели имеют в разрезе конфигурацию треугольника вершиной вниз (см. рисунок 7). Это позволяет навозу самой разной консистенции беспрепятственно просачиваться в ванны навозонакопления, которые устраиваются под полом помещения. Ширина щели различна для разных половозрастных групп животных и составляет от 17 до 25 мм. Оптимальным является размер 20 мм, поскольку это сводит к минимуму риск травм копыт животных.
Рис. 7 Бетонный щелевой пол.
Протаптывание навоза не вызывает особых проблем при групповом содержании холосто-супоросных свиноматок и свиней на откорме. Однако оно затруднено при индивидуальном содержании свиноматок. В этом случае необходимо устанавливать решетки с лючками в задней части станка.
Важным показателем качественного поля является его рабочая поверхность, которая должна быть достаточно ровной и гладкой, и в то же время – достаточно шероховатой, чтобы копыта у свиней не проскальзывали.
Поэтому бетонные щелевые панели изготавливаются не традиционным мокрым способом с пропариванием и формовкой, а путем виброформования полусухих бетонных смесей с последующим переворачиванием рабочей поверхностью вниз для застывания на гладкой подложке.
Для сокращения затрат на обустройство современных полов можно применить принцип частичного щелевого пола. То есть часть полов в помещениях для группового содержания свиноматок и свиней на откорме сделать сплошными бетонными. В этом случае необходимо вдумчиво подойти к зонированию загона с тем, чтобы навоз оставался только на щелевой части. С этой целью на щелевой части пола устанавливают кормушку с поилками, а в самом дальнем углу ставят дополнительный ниппель водопоения. Кроме этого, в этой части загона устраивают прозрачную перегородку с соседним загоном. Практика показала, что именно сюда животные ходят для испражнения, а на сплошном полу устраивают логово. Это позволит свести трудозатраты по очистке загона к минимуму.
Пластиковые щелевые полы
Современные технологии предполагают содержание поросят после отъема от свиноматки пластиковых щелевых или комбинированных бетонных и щелевых полах.
Поскольку современные системы навозоудаления исключают сквозняки, такие полы способствуют высокой сохранности поросят, позволяют поддерживать хорошее санитарное состояние в станках.
Пластиковые щелевые полы изготавливаются из первичного полиэтилена, т.е. полиэтилена, не подвергавшегося ранее переработке, и отличающегося высокой прочностью и упругостью, легко монтируются (2 человека укладывают 100 м2 за смену).
Пластиковые щелевые полы могут комбинироваться с панелями, подогреваемыми теплой водой и чугунными полами. Они устойчивы к агрессивной среде и низкой температуре. В результате содержание свиней становится менее трудоемким.
Конструкция полов имеет специальные выступы и пазы для соединения в многосекционное напольное покрытие любого размера (см. рисунок 8).
В качестве несущей системы используются опоры из полосовой нержавеющей стали или в оцинкованном исполнении. Подобная конструкция обладает повышенной несущей способностью и имеет длительный срок службы. Её монтаж очень прост и производится вручную. На 1 кв.м. пола необходимо 2,5м. полосовой стали. В случае необходимости, решѐтчатый пол можно легко разобрать. Для замыкания контура щелевых полов вдоль стен применяются замки-вкладыши длиной 300 мм.
Рис. 8 Пластиковый щелевой пол.
При использовании данной системы полов создаются необходимые предпосылки для обеспечения здоровья свиноматок и поросят. За счѐт оптимального соотношения площади отверстий и перемычек решѐток, пол легко моется и всегда остаѐтся чистым.
Пластиковые щелевые панели выпускаются в основном стандартных размеров 0,6 х 0,4 м. При этом ширина ванн максимально может достигать величины 3,60 м. Ширина щели в пластиковых панелях колеблется в пределах 9 - 10 мм. На поверхности делается специальная насечка либо ребра против скольжения копыт.
Чугунные щелевые полы
Применение таких полов в современных свинарниках ограничено только логовом для подсосной свиноматки. Главными недостатками металлических полов является тот, что они холодные и отнимают тепло у животных. Именно это свойство и используется в случае обустройства пола под подсосной свиноматкой. При лактации температура тела свиноматки поднимается, что вызывает у нее дискомфорт. Чтобы создать комфортные условия для подсосной свиноматки под ней настилают металлический пол. При этом зона вокруг этого пола, в которой находятся маленькие поросята, обустраивается пластиковыми панелями, либо металлическими, покрытыми толстым слоем пластика.
Металлические решетки, которые изготавливаются как из стали, так и из чугуна, в разрезе имеют форму треугольника вершиной вниз (см. рисунок 9). Кроме этого, современные металлические полы, предназначенные для подсосной свиноматки, оборудуются лючками в задней части для легкого схода навоза. Ширина щели в металлических панелях колеблется в пределах 10 - 15 мм.
Рис. 9 Металлический щелевой пол.
2.3. Механические способы удаления и транспортирования навоза. В качестве технических средств для удаления навоза механическими средствами применяют транспортеры типов ТС, КНП, КСУ и шнеки, которые обеспечивают качественную уборку как бесподстилочного, так и навоза с подстилкой в виде опилок, торфа, измельченной соломы. При этом следует учитывать, что шнековые транспортеры имеют срок службы не менее 10 лет, тогда как у скребковых транспортеров и скреперных установок фактический срок службы составляют от 3 до 5 лет. Установлено, что шнековые транспортеры превосходят все технические средства для уборки навоза по такому важному показателю, как полнота уборки навоза из помещений.
Шнековая система уборки навоза используется в продольных и в поперечных каналах.
Объем продольного канала принимается из расчета сбора двухсуточного количества навоза. Продольные каналы под шнековые транспортеры перекрываются металлическими решетками шириной не менее 500 мм. Перепад между нитками продольного и поперечного шнекового транспортера должен составлять 150-200 мм.
Угол наклона боковых стенок канала к вертикали должен быть не более 23°.
На дно канала укладываются закладные из стальной полутрубы диаметром, соответствующим диаметру шнека.
Поперечные шнековые транспортеры могут обслуживать несколько животноводческих помещений. Максимальная длина шнекового транспортера - 150 м.
Для уборки навоза из каналов, перекрытых щелевыми полами. На всех типах животноводческих предприятий рекомендуется использовать скреперные установки типа УСН-Ф-0,25. При этом длина канала может достигать 90 м, ширина - 1,2-2,5 м.
Примеры реконструкции свинарника с заменой продольных скребковых транспортеров типа ТС-1 шнековыми приведены на рис. 10 и 11.
При этом в поперечном навозосборном канале вместо установленных по проекту транспортеров ТС-1 предлагается монтировать конвейеры скребковые универсальные КСУ-Ф-1.
Универсальный навозоуборочный конвейер КСУ-Ф-1 состоит из мобильной каретки (1), на которой подвешен скребок (2). Каретка передвигается на роликах 3 по направляющим 4, уложенным по обеим сторонам канала.
Рис. 10. План и разрез свинарника-откормочника на 1000 мест.
1 - секция первого периода откорма (2 шт.); 2- секция второго периода откорма (2 шт.)
Для исключения перегрузок узлов и деталей привода и конвейера скребки выполнены подвесными на кронштейнах 5 длиной 150 мм, причем между верхней кромкой скребка и рамой тележки образуется окно для перепуска навоза через скребок при избыточном накоплении его в навозном канале.

Рис. 11 Схема установки на свинокомплексе конвейера скребкового универсального КСУ-Ф-1.
Скребки удерживаются в рабочем положении двумя цепями 6. При включении конвейера в работу его скребки транспортируют навоз в одном направлении. При обратном холостом ходе скребки отклоняются и скользят по поверхности навоза, создавая минимальное сопротивление движению.
Продольные шнековые транспортеры 7 с правой и левой навивкой позволяют перемещать навоз в поперечный канал, проходящий по центру свинарника. Конвейер КСУ-Ф-1 из зданий транспортирует навоз в навозосборник. Глубина продольных каналов в свинарниках 400 мм, поперечных – 800 мм, ширина верхней части продольного канала – 500 мм, поперечного канала и сборного канала коллектора – 820 мм, глубина сборного канала – 1500 мм.
Стационарные технические средства удаления навоза кругового действия типа ТС, ТСН и др., (использующие при транспортировании навоза метод волочения) характеризуются высокой нагрузкой на приводное устройство, многократным и технологически необоснованным перемещение навозной массы по свинарнику (в два раза превышающей длину свинарника). Взамен этих устройств разрабатываются новые технические средства, основанные на принципе порционности удаления навоза из свинарников и транспортировки его до навозосборника кратчайшим путём.
2.4. Самотечные системы периодического действия
Принципиальные технологические решения продольных навозосборных каналов самотечных систем периодического действия показаны на рис. 12. Анализ опыта эксплуатации таких систем навозоудаления показывает, что при сливе навоза осадок со дна навозного канала не смывается и постепенно толщина слоя осадка, накапливаемого на дне канала увеличивается.

Рис. 12 Принципиальные схемы типовой системы навозоудаления периодического действия
1- щелевой пол, 2 - шибер, 3 - поперечный канал, 4 - продольный навозосборный канал; 5 - смывной бачок, 6 - кран, 7 - смывной патрубок.
Для удаления осадка и исключения его накопления в продольных каналах применялись различные способы смыва осадка водопроводной водой.
Однако это приводило к увеличению влажности и возрастанию объема навоза, а также снижению его удобрительной ценности. С целью устранения этого недостатка была разработана и внедрена секционная система удаления навоза из продольных навозных каналов (Рис. 13).

Рис. 13. Схема секционной системы навозоудаления периодического действия.
1- поперечный коллектор; 2- шиберное устройство; 3- неподвижная поперечная перегородка; 4- щелевой пол; 5- навозоприемный лоток – поперечный канал; 6- смывной трубопровод с задвижкой.
Принципиальным отличием самотечной системы удаления навоза секционного типа является то, что по длине навозсборных каналов устанавливаются дополнительно неподвижные поперечные перегородки, разделяющие канал на секции.
Ширину зазора между дном продольного канала и перегородкой принимают равной 0,25 м у первой перегородки и 0,20 м у остальных. Навозосборные каналы секционных систем могут прокладываться без уклона.
Перегородки продольных каналов секционной системы выполняют из металла и устанавливают на расстоянии 6 – 9 м одна от другой. Последняя перегородка установлена на расстоянии 2 – 3 м от задней стенки продольного канала.
Преимуществами этой системы является сравнительно меньший расход воды для удаления навоза, независимость от технологии содержания и кормления животных и др. Недостатком системы является возможность накопления придонного осадка и образование мертвой зоны в торце последней секции навозосборного канала.
Для обеспечения нормальной и безотказной эксплуатации уклон дна продольных навозосборных каналов принимают не менее 0,005.
Уклон поперечных каналов в пределах здания в зависимости от размеров каналов, влажности навоза, рельефа и гидрогеологических условий должен составлять в пределах 0,01…0,3.
Для периодической очистки и промывки навозоприемных каналов от осадка в начальной части каналов проектные решения систем дополняют установкой трубопровода для подачи смывной воды.
В процессе производственной эксплуатации классического варианта секционной системы навозоудаления (рис. 12) выявлен ее недостаток - в глухом (противоположном шиберу) торце канала наблюдается накопление осадка навоза.
Для устранения этого недостатка ВНИИМЖ разработана система СУН-2, обеспечивающая удаление расслоенного свиного навоза с твердой фракцией преимущественно в виде осадка. Она представляет собой усовершенствованную секционную самотечную систему периодического действия.
Новым в данной системе является соединение торцов двух соседних противоположных расположению шиберов навозосборных каналов поперечным.
Это позволяет использовать объем жидкой навозной фракции в одном из каналов для промыва отдаленного от шибера торца другого канала.
При проектировании или привязке секционной системы с закольцованными каналами длина продольных каналов должна быть не более 40 м, ширина - не менее 1,0 м. При этом длина секций принимается 6…9 м, начиная от начала канала со стороны шибера калиточного типа, устанавливаемого перед поперечным каналом.
Технология и технические решения секционной системы удаления навоза, разработанные ВНИИМЖ использованы в разработке проектов свиноводческих предприятий и проведении реконструкции систем навозоудаления действующих свиноферм.
На рис. 14 приведен конструктивное решения системы удаления навоза из свинарника с использованием СУН – 2.

Рис. 14. Технические решения системы удаления навоза из свинарника с использованием СУН – 2.
1- закольцованный канал, 2- перегородки, 3- соединительный канал, 4- шибер, 5- решетка. Система навозоудаления свинарника состоит из 8 продольных секционированных каналов длиной до 35 м, закольцованных попарно соединительным каналом, шиберных затворов и сборного поперечного канала.
Технология удаления навоза заключается в следующем. Удаление навоза из двух закольцованных продольных каналов осуществляют поочередно. Для этого перед началом эксплуатации шибера закольцованных продольных каналов герметично закрывают и оба канала заполняют водой на 5 –10 см.
После заполнения каналов навозной массой открывают шиберный затвор одного из каналов. В начале процесса обеспечивается смыв навоза и удаление образовавшегося за период накопления навоза придонного осадка со дна этого канала потоком навозной массы. образовавшегося за период накопления навоза придонного осадка со дна канала потоком навозной массы, обладающей большой скоростью истечения из секции. При этом смыв и удаление придонного осадка с торца последней секции этого навозосборного канала осуществляется жидкой фракцией навоза, поступающей через соединительный канал из соседнего продольного канала.
Затем по такой последовательности производят удаление навоза из соседнего канала и технологический процесс повторяют.
Применение технологии навозоудаления с использованием системы СУН-2 обеспечивает сокращение расхода технологической воды на нужды навозоудаления до 30%, снижение влажности удаляемого навоза и соответственно объемов и сметной стоимости навозохранилищ.
2.5. Гидросмывные системы.
Гидросмывную систему удаления и транспортирования навоза допускается применять в исключительных случаях, только при реконструкции и расширении крупных свиноводческих предприятий (54 и более тыс. свиней в год) при невозможности применения других способов и ионических средств для удаления навоза, а также с учетом утилизации всех его компонентов.
В соответствии с требованиями СП 4542-87 для гидросмывов должна использоваться непитьевая вода.
Примечание - Применение гидросмывной системы удаления для нового строительства допускается при соответствующем обосновании и согласовании с органами государственного экологического контроля, ветеринарного и санитарного надзора.
При гидросмывной системе следует применять установки (напорные бачки) для смыва навоза в каналах, перекрытых решетками, установки поверхностного смыва навоза с площадок дефекации.
Уклон канала принимается в пределах 0,005-0,02.
2.5.1. Установки поверхностного смыва навоза в свинарниках группового содержания животных должны обеспечивать удаление навоза с пола в зоне дефекации (имеющей ширину 1-1,8 м, длину до 3 м, толщину 5-6 см уклон 0,01) под напором 0,5 МПа (5 атм) в поверхностные лотки из попу ч>уб диаметром не менее 150 мм. Сбор и отведение навозных стоков in дует производить по трубам диаметром не менее 300 мм.
2.5.2. Ширину и длину продольных каналов для гидравлических способов удаления навоза следует принимать по таблицам 1 и 2.
2.5.3. Глубину продольных каналов определяют в соответствии с таблицей 3.
При устройстве вентиляционных воздухозаборов в навозных каналах глубина этих каналов между низом решетчатого пола и максимальным уровнем поверхности навоза в начальной части каналов (за исключением гидросмывной системы) должна увеличиваться:
- для системы периодического действия - на 350 мм;
- для системы непрерывного действия - на 250 мм.
2.5.4. Поперечные каналы, к которым примыкают продольные, рекомендуется прокладывать под коридорами, разделяющими секции содержания животных. За пределами животноводческих помещений поперечные каналы (коллекторы) должны выполняться из труб диаметром не менее 500 мм.
Таблица 1. Минимальная ширина продольных каналов по верху, м.
|
Система удаления навоза из животноводческих помещений |
|
при содержании свиней в групповых клетках | ||
|
|
поросят-отъемышей и ремонтного молодняка |
взрослых свиней |
|
Самотечная система: |
|
|
|
- периодического действия |
0,7 |
0,9 |
|
- гидросмывная система |
0,6 |
0,7 |
Таблица 2 Максимальная длина продольных каналов, м.
|
Система удаления навоза из животноводческих помещений |
при содержании свиней в групповых клетках | |
|
|
поросят-отъемышей и ремонтного молодняка |
взрослых свиней |
|
Самотечная система: |
|
|
|
- периодического действия |
30 |
40 |
|
- гидросмывная система |
50 |
100 |
Таблица 3 Глубина продольных каналов, м.
|
Длина продольного канала, м |
помещения для содержания свиней в групповых станках |
|
10 |
0,8 |
|
15 |
0,9 |
|
20 |
1,0 |
|
25 |
1,1 |
|
30 |
1,2 |
|
До 40 |
1,3 |
Примечания
При самотечной системе периодического действия минимальная глубина продольного канала в помещениях для молочного скота и свиной, содержащихся в групповых станках, составляет 0,8 м.
При гидросмывной системе минимальная глубина продольного в помещениях для свиней, содержащихся в групповых станках, составляет 0,6 м.
Переход канала в трубу должен осуществляться плавно перепадом 0,1 м. В каналах следует устанавливать вытяжные стояки диаметром 150 мм через 50 м. Перепад в местах примыкания продольных каналов к поперечным должен составлять не менее 300 мм.
Уклон поперечных каналов в пределах здания при самотечной системе периодического действия в зависимости от размеров каналов, сжиженности навоза, рельефа и гидрогеологических условий следует принимать 0,01-0,30.
При самотечной системе непрерывного действия н пределах зданий крупного рогатого скота до приемных емкостей допускается применение поперечных каналов с порожком без уклона; их глубина в этом случае должна обеспечивать возможность создания гидравлического уклона поверхности навоза 0,02 без образования подпора навозу, вытекающему из продольных каналов.
2.5.5. В животноводческих помещениях в местах примыкания продольных каналов к поперечным следует предусматривать смотровые люки, а по трассе коллекторов вне здания смотровые колодцы, которые должны быть расположены на расстоянии не более 50 м друг от друга. Диаметр колодцев должен быть не менее 1 м.
В колодцах с присоединением или поворотом отводящие трубы должны укладываться на 0,1 м глубже, чем подводящие, с плавным переходом лотка, без уступов. Повороты лотков должны выполняться радиусом не менее 1,5-2,0 диаметра трубы.
2.5.6. В конце продольных каналов следует предусматривать установку шторок для исключения сквозняков и проникновения вредных газов из магистральных каналов животноводческих помещений, а при гидросмывной системе - устройство гидрозатворов. Их установка должна решаться совместно с системой вентиляции.
Количество воздуха, удаляемого из каналов, должно быть для свиноводческих предприятий - не менее 50% минимального расчетного воздухообмена.
При подпольном хранении навоза количество удаляемого воздуха из подпольных навозохранилищ должно быть не менее 50% минимального расчетного воздухообмена.
2.5.7. Расход производственной воды для удаления навоза и промывки каналов при гидросмывной системе удаления навозных стоков следует принимать равным 20,0 л/гол.
Для промывки и дезинфекции решеток, пола и станков животноводческих помещений следует принимать высоконапорные моечные машины типа ОМ-22613 (развивающие при смыве давление до 14 МПа и при дезинфекции - 1,6 МПа), что обусловливает снижение объема жидкого навоза и навозных стоков.
Величина минимальной расчетной скорости течения жидкого навоза по трубам и поперечным каналам при их промывке должна приниматься не ниже величины самоочищающих скоростей (1,1-1,2 м/с).
Для удаления навоза из помещений должна использоваться, как правило, производственная вода.
Примечание - При возникновении на предприятиях эпизоотий применение жидкой неинфицированной фракции в системе рециркуляции не допускается; смыв навоза из каналов в этом случае должен производиться производственной водой.
3. Исходные параметры для проектирования систем навозоудаления.
3.1. Основанием для проведения расчётов систем навозоудаления свинокомплексов промышленного типа являются:
- материалы инженерно-гидрогеологических изысканий,
- генеральные планы свиноводческих комплексов.,
- нормативы выхода навозных стоков и расходы воды на
производственные нужды (мытьѐ животных, расходы на проведение санветобработки и
пр.),
- технологическая часть проектной документации
свиноводческих комплексов (численность и размещение поголовья в
производственных зданиях и помещениях свиноводческих комплексов),
- принятая система навозоудаления.
3.2. Территория для размещения зданий и сооружений систем удаления и переработки навозных стоков свинокомплексов промышленного типа выбирается одновременно с выбором площадок для строительства промышленных свиноводческих комплексов в соответствии с СанПиН 2.2.1./2.1.1.1200-3 «Санитарно-защитные зоны и санитарная классификация предприятий, сооружений и иных объектов», СНиП II-97-76 «Генеральные планы сельскохозяйственных предприятий», СНиП ІІ-89-80 «Генеральные планы промышленных предприятий» и действующим проектом районной планировки, планом организационно-хозяйственного устройства предприятий и существующей планировкой данного населенного пункта. Площадка строительства согласовывается с местными органами Государственного санитарно-эпидемиологического, ветеринарного и пожарного надзора с учетом охраны окружающей среды.
Земельный участок для строительства навозохранилищ систем удаления и переработки навозных стоков свинокомплексов промышленного типа выбирается на ровной территории или с уклоном 3...5˚, обеспечивающим сток дождевых и талых вод.
Участок для строительства навозохранилищ должен быть расположен ниже строений населенного пункта, водозаборных сооружений и зданий свинокомплекса. При этом учитывается направления господствующих ветров (от жилого сектора к комплексу и далее к навозохранилищам).
Территория сооружений подготовки навоза и помета к использованию должна быть:
- огорожена;
- освещена;
Желательно, чтобы минимальный уровень залегания грунтовых участка для строительства навозохранилищ систем удаления и переработки навозных стоков промышленных свиноводческих комплексов вод находился на глубине не менее 2...2,5 м. Прочность грунта должна отвечать требованиям возведения производственных и вспомогательных построек.
3.3. Выбор систем удаления и переработки навозных стоков промышленных свиноводческих комплексов следует осуществлять с учетом сложившихся условий (при реконструкции промышленных свиноводческих комплексов), а также в зависимости от гидрогеологических условий, наличия необходимого количества земельных угодий с учетом экологического состояния и климатических условий района строительства и обеспечения наибольшей эффективности капитальных вложений.
3.4. Расчетное среднесуточное количество и влажность навоза от одного животного разных половозрастных групп при кормлении свиней полнорационными концентрированными кормами на свиноводческих предприятиях приведены в таблице 4.
Таблица 4
|
Половозрастные группы животных |
Показатели |
Состав навоза |
||
|
всего |
в том числе |
|||
|
кал |
моча |
|||
|
Хряки |
Масса, кг |
11,1 |
3,86 |
7,24 |
|
Влажность, % |
89,4 |
75,0 |
97,0 |
|
|
Свиноматки: |
||||
|
- холостые |
Масса, кг |
8,8 |
2,46 |
6,34 |
|
|
Влажность, % |
90,0 |
73,1 |
97,5 |
|
- супоросные |
Масса, кг |
10,0 |
2,6 |
7,4 |
|
|
Влажность, % |
91,0 |
73,1 |
98,3 |
|
- подсосные |
Масса, кг |
15,3 |
4,3 |
11,0 |
|
|
Влажность, % |
90,1 |
73,1 |
96,8 |
|
Поросята (возраст, дней): |
||||
|
26-42 |
Масса, кг |
0,4 |
0,1 |
0,3 |
|
|
Влажность, % |
90,0 |
70,0 |
96,7 |
|
43-60 |
Масса, кг |
0,7 |
0,3 |
0,4 |
|
|
Влажность, % |
86,0 |
71,0 |
96,0 |
|
61-106 |
Масса, кг |
2,4 |
0,9 |
1,5 |
|
|
Влажность, % |
86,1 |
71,4 |
96,3 |
|
Свиньи на откорме (масса, кг): |
||||
|
до 70 |
Масса, кг |
5,0 |
2,05 |
2,95 |
|
|
Влажность, % |
87,0 |
73,0 |
96,7 |
|
более 70 |
Масса, кг |
6,5 |
2,7 |
3,8 |
|
|
Влажность, % |
87,5 |
74,7 |
96,9 |
Примечания
Общую зольность навоза следует принимать 15%, плотность сухого вещества - 1400 кг/м3.
Содержание мочи, полученной на предприятиях с проектным поголовьем, следует принимать 65% от общей массы навоза, содержание сухого вещества в моче - 17% от общей массы сухого вещества в навозе.
При использовании многокомпонентных кормов и пищевых отходов количество навоза следует принимать на 30% больше приведенных в таблице.
Массу навоза на предприятиях с законченным циклом производства в среднем на 1 гол. (исключая поросят-сосунов) допускается принимать 4,5 кг, влажность - 88%
3.5. Выход стоков с промышленных свиноводческих комплексов складывается из объемов навозных стоков от животных и расходов воды на производственные нужды (мытье животных, расходы на проведение санветобработки и пр.).
3.5.1. Суточный и годовой расход воды на поение рассчитывается по нормам потребления воды на поение, приведенном в таблице 5.
Нормы учитывают влажность корма при различных типах кормления, поэтому для сухого кормления норма потребления воды на 30% выше, чем при влажном кормлении
Таблица 5
|
Половозрастные группы животных |
Поение |
|
|
Сухой тип кормления |
Влажный тип кормления |
|
|
Хряки-производители |
15 |
10 |
|
Холостые и супоросные свиноматки |
15,6 |
12 |
|
Свиноматки подсосные |
25 |
12 |
|
Поросята-отъемыши, живым весом 7-30 кг |
2,5 |
2 |
|
Откормочный молодняк 30-70 кг |
5 |
3,5 |
|
Откормочный молодняк 70-110 кг |
6,5 |
5 |
|
Откормочный молодняк 30-115 кг |
7,8 |
6 |
|
Ремонтный молодняк живой массой от 30 до 120 кг |
7,8 |
6 |
Перерыв в подаче воды для поения свиней и приготовления кормов допускается не более 3 часов, в ночное время – до 6 часов.
Поение свиней осуществляется из сосковых автопоилок. В станках для подсосных свиноматок эти автопоилок размещаются отдельно для матки и поросят – сосунов. В станках для хряков, поросят-отъемышей, ремонтного и откармливаемого молодняка, холостых и супоросных свиноматок устанавливается по одной поилке.
В жарких и сухих районах нормы потребления воды животными допускается увеличивать до 25%.
Расход воды температурой 38-40 °С на санитарную обработку тяжелосупоросных свиноматок при поступлении их в свинарник-маточник для опоросов - 20 л на голову.
Годовая потребность в воде для каждой половозрастной группы свиней определяется по формуле:
К = С х П х 365, где
С - суточная потребность в воде одной головы, кг
П – единовременная постановка на производственном участке,
голов
Годовая потребность в воде свинокомплексов промышленного типа определяется как сумма потребности в воде для всех половозрастных групп свиней.
Вода на поение поросят-сосунов и поросят-отъемышей должна иметь температуру не ниже 16-20 °С.
Температура воды для поения взрослых свиней в холодное время года должна быть не менее 10-16 °С, а в теплое время года не нормируется.
Свинокомплексы промышленного типа должны обеспечиваться водой питьевого качества, удовлетворяющей требованиям действующего стандарта "Вода питьевая".
Расход воды на приготовление кормов определяется при расчетах рационов кормления животных.
3.5.2. Расход воды на мытье и дезинфекцию помещений определяется по нормам расхода горячей и холодной воды на мытье оборудования и дезинфекцию помещений.
Расход воды температурой 55-60 °С:
- на мытье оборудования – 3 л на 1 м2;
- на дезинфекцию помещений 1 л раствора на 1 м2.
Расход воды холодной:
- уборка помещений перед дезинфекцией – 6л на 1 м2;
- уборка помещений после дезинфекции – 3 л на 1 м2;
- уборка помещений по мере необходимости в зоне дефекации –
3л на 1 м2.
Годовая потребность в воде на мытье и дезинфекцию помещений каждого производственного участка определяется по формуле:
В = (М + Д + О) х П х К, где
В – годовая потребность в воде на мытье и дезинфекцию,
л/год;
М – расход воды на мытье помещения до и после дезинфекции,
л/м2,
Д – расход воды на дезинфекцию помещения, л/м2,
О – расход воды на мытье оборудования, л/м2,
П – общая площадь помещений для содержания животных
определенного производственного участка, м2,
К – количество обработок помещений за год.
Коэффициент часовой неравномерности принимается 2,5.
3.4.3. В зависимости от принятой проектом системы канализации объекта к вышеперечисленным источникам выхода навозных стоков может добавиться расход воды на хозяйственно-бытовые нужды.
Расчёт расхода воды на хозяйственно-бытовые нужды производится согласно СНиП 2.04.01-85* приложения 2, 3.
Нормы расхода воды потребителями приведен в табл. 6.
Таблица 6
|
Водопотребители |
Измеритель |
Нормы расхода воды, л |
Расход воды прибором, л/с (л/ч) |
||||||
|
в средние сутки |
в сутки наибольшего водопотребления |
в час наибольшего водопотребления |
|||||||
|
общая |
(в том числе горячей) |
общая |
(в том числе горячей) |
общая |
(в том числе горячей) |
общий (холодной и горячей) |
холодной или горячей |
||
|
Административные здания |
1 работающий |
12 |
5 |
16 |
7 |
4 |
2 |
0,14 (80) |
0,1 (60) |
|
Прачечные механизированные |
1 кг сухого белья |
75 |
25 |
75 |
25 |
75 |
25 |
по технологическим данным |
- |
|
Предприятия общественного питания для приготовления пищи, реализуемой в обеденном зале |
1 условное блюдо |
12 |
4 |
12 |
4 |
12 |
4 |
0,3 (300) |
0,2 (200) |
|
Цехи с тепло-водительными свыше 84кДж на 1 м3/ч |
1 человек в смену |
- |
- |
45 |
24 |
14,1 |
8,4 |
0,14 (60) |
0,1 (40) |
|
Остальные цеха |
1 человек в смену |
- |
- |
25 |
11 |
9,4 |
44 |
0,14 (60) |
0,1 (40) |
|
Душевые в бытовых помещениях смежных промышленных предприятий |
1 душевaя сетка в смену |
- |
- |
500 |
270 |
500 |
270 |
0,2 (500) |
0,14 (270) |
Потребность в воде складывается из общей потребности санитарных приборов
При проектировании свиноводческих предприятий количество работающих определяется по штатному расписанию предприятия. Количество работающих в наиболее многочисленную смену определяется проектом.
Численность обслуживающего персонала определяется в соответствии с нормами технологического проектирования.
4. Транспортирование навозных стоков.
4.1. Транспортирование навоза и навозосодержащих стоков от животноводческих помещений свинокомплексов промышленного типа до сооружений сбора, карантинирования, обеззараживания и подготовки к использованию должно осуществляться в зависимости от принятого способа удаления навоза из помещений стационарными транспортными средствами, мобильным или гидравлическим транспортом.
Стационарные транспортные средства следует применять для подачи навоза от механических средств навозоудаления, расположенных в животноводческих помещениях, в навозосборники и прифермские навозохранилища.
Мобильный транспорт следует использовать для транспортирования подстилочного, полужидкого и жидкого навоза с суточным выходом до 100 м3.
Гидравлический транспорт следует проектировать для транспортирования жидкого навоза, навозных стоков и других продуктов очистки и переработки навоза и навозных стоков.
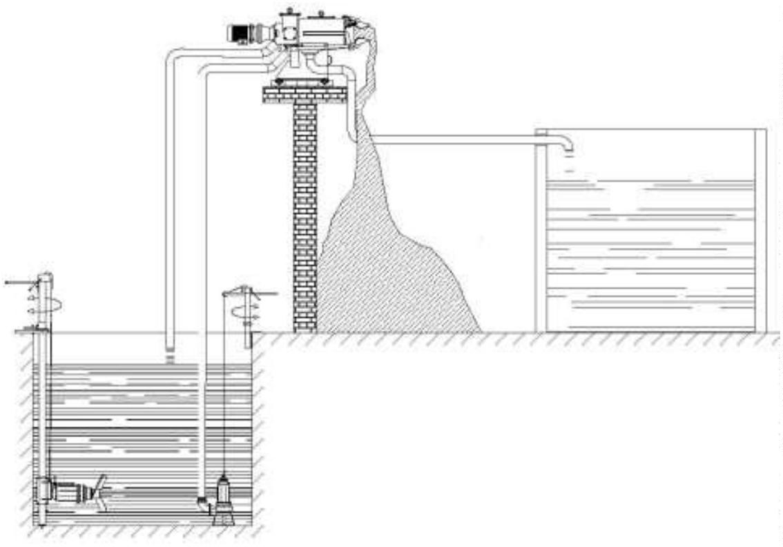
Неотъемлемой частью современной системы удаления и переработки навозных стоков является канализационная насосная станция (КНС).
КНС представляет собой отдельно стоящее инженерное сооружения, включающее в себя резервуар – навозосборник и технологическое оборудование служащие для усреднения и перекачки поступающих на станцию стоков. Основным назначением канализационной насосной станции является выполнение следующих технологических функций: прием, накопление, гомонизация (усреднение) навозных стоков и перекачка их на сооружения переработки (карантинные емкости, навозохранилища, цех разделения и т.д.).
Резервуар – навозосборник располагают как правило за пределами животноводческих зданий и выполняют из типовых серийных железобетонных изделий либо изготавливают по месту из монолитного железобетона. Резервуар может иметь любую форму, но с точки зрения гидравлики оптимальным является круглые в плане (цилиндрические) емкости.
Рабочий объем навозоприемника КНС назначают исходя из режима притока и откачки навозных стоков. Для свиноводческих предприятий рекомендуется рабочий объем резервуара КНС рассчитывать на сбор не менее половины расчетного суточного объема навозных стоков. При этом коэффициент неравномерности притока навозных стоков для ферм с гидросмывной системой навозоудаления принимается равным 2,2.
Удаляемый из животноводческих помещений навоз поступает на КНС по самосплавной канализационной системе. Перед приемным резервуаром насосной станции следует предусматривать установку шибера или задвижки, а в самом резервуаре должен быть установлен решетчатый контейнер с прозорами не менее 8 мм и не более 50 мм. В этом случае подводящая труба располагается выше рабочего уровня стоков в резервуаре.
Существует схема подачи навоза в КНС в которой подающая труба расположена ниже верхнего уровня стоков резервуара (Рис. 15). Преимуществом такой схемы является наличие гидрозатвора, препятствующего проникновению газовых выделений из КНС через самосплавную систему в животноводческие помещения. Минусом данной системы является невозможность применения в резервуаре решетчатого контейнера или подобного ему оборудования, предназначенного для улавливания из стоков посторонних предметов способных повредить насосное оборудование.

Рисунок 15.
1 – уровень навозных стоков в резервуаре КНС; 2 – подающая
труба;
3 – решетчатый контейнер.
С целью предотвращения расслоения навозных стоков на фракции и выпадения осадка в резервуаре КНС необходимо устанавливать устройства для перемешивания. Данные устройства могут быть смонтированы стационарно в резервуаре или же быть переносными. Для перемешивания навозных стоков в резервуаре насосной станции применяются погружные насосы или специализированные мешалки - гомогенизаторы.
Мешалки – гомогенизаторы обеспечивают усреднение навозных стоков по плотности и загрязнению,а так же предотвращают преждевременное разделение стоков по фракциям. Смешивание обеспечивается за счет потока, создаваемого лопастями мешалки. При этом лопасти имеют конфигурацию обеспечивающее самоочищение. Устанавливать мешалки рекомендуется напротив насосов. Выбор мешалок производится исходя из производительности и дальности действия в соответствии с габаритными размерами резервуара КНС по таблицам производителя.
Выпускаемые фирмой Cri-Man (Италия) погружные мешалки серии TBM (рис. 16 и 17) имеют следующие характеристики.
производительность (м3/час) – 318…6702;
крутящий момент (Н) - 153…3725;
мощность двигателя (кВт) – 0,75…18,5;

Рисунок 16. Погружная мешалка серии TBM производства компании Cri-Man (Италия). Внешний вид.

Рисунок 17. Погружная мешалка серии TBM производства компании Cri-Man (Италия). Диаграмма подбора.
Мешалки устанавливаются на специальных кронштейнах (Рис. 18)
обеспечивающих их надежную фиксацию, а так же регулирование по высоте и направлению создаваемого потока. Так же кронштейны укомплектованы подъемными лебедками.

Рисунок 18. Кронштейн для крепления мешалок серии TBM.
В КНС с небольшим диаметром резервуара мешалки применять не рекомендуется. В этом случае процесс перемешивания обеспечивается насосами, создающих циркуляцию накопленных стоков в резервуаре.
Для перекачки усредненных навозных стоков из резервуара КНС к сооружениям последующей обработки применяются различные погружные насосы. Для перекачки навоза рекомендуется предусматривать насосы с измельчающими устройствами при этом насосы следует устанавливать под заливом. Диаметр всасывающего трубопровода следует принимать не менее 200 мм, напорного - не менее 150 мм.
Подбор насоса определяется по производительности и необходимому напору. Подбор насоса по необходимому напору производится на основании гидравлического расчета выполненного в соответствии с СНиП 2.04.03-85 с 20% запасом.
Выпускаемые фирмой Cri-Man (Италия) погружные насосы серии PTS (рис. 19) с измельчающим механизмом имеют следующие характеристики.
производительность (м3/час) – до 350;
мощность двигателя (кВт) – 0,75…18,5;
напор (м) – до 12,5.

Рисунок 19. Погружной насос серии PTS производства компании CriMan (Италия). Внешний вид.
В зависимости от принятого нижнего (минимального) уровня стоков в резервуаре) современные насосы могут быть установлены как вертикально, так и горизонтально (Рис. 20).

Рисунок 20. Погружной насос серии PTS производства компании CriMan (Италия). Варианты установки.
В резервуаре канализационной насосной станции для перекачки навозных (рис. 21) рекомендуется устанавливать не менее двух насосов, соединенных с напорными трубопроводами. Управление насосов предусматривается автоматическое включением и отключение при достижении уровня стоков определенной отметки.
Так к примеру первый насос должен включаться при достижения стоков рабочего уровня, и отключатся при достижении минимально допустимого.
Второй насос является дежурным и включается либо при выходе из строя первого, либо при достижении уровня стоков максимально допустимой отметки.

Рис. 21 Устройство КНС (второй насос условно не показан)
1-сливной трубопровод от здания(ий) свинарника(ов); 2-напорный трубопровод от КНС к навозохранилищ; 3- контейнер-уловитель; 4- мешалка-гомогенизатор; 5- откачивающий насос.
Гидравлический расчет напорных навозопроводов следует проводить на максимальный секундный расход.
Расход стоков, протекающих в навозопроводе:
Скорость в напорных навозопроводах назначается с учетом реологических и седиментационных свойств, незаиливающей скорости и влажности навозных стоков.
По заданным расходу и диаметру определяют скорость движения стоков:
Величина потерь напора на единицу длины определяется по формуле:
Потери напора по длине навозопровода, определяются формулой:
Необходимый напор насоса определяется по формуле:
Помимо основного технологического оборудование канализационная насосная станция должна быть оборудована грузоподъемным устройством, системой вентиляции резервуара, автоматической системой управления.
В насосной станции предусматривается вытяжная механическая система вентиляция, производительность которой принята исходя из требуемого воздухообмена - не менее 12 крат. Удаление воздуха при работе насосной станции производится из двух зон: из верхней зоны и из нижней зоны над уровнем жидкости. Вытяжка компенсируется приточным воздухом, поступающим через люки в плите покрытия и подающего трубопровода либо через приточный воздуховод.
Для погружных насосов предусматривается автоматическая работа от уровня стоков в приемном резервуаре. Для вытяжного вентилятора предусмотрена автоматическая работа при температуре выше 5С°.
Предусматривается так же включение вентилятора и выключение насосов и мешалки при открывании люка.
Щиты управления технологического оборудования устанавливаются в отдельно стоящем металлическом шкафу.
Для удобства обслуживания резервуар снабжен вертикальной лестницей.Монтируемые металлические конструкции покрываются антикоррозийной защитой. Для внутренних и наружных поверхностей резервуара необходимо устройство гидроизоляции предотвращающих проникновение грунтовых вод во внутрь резервуара и попадания жидкости навозных стоков в почву.
Навозоприемники (приемные резервуары насосных станций), предназначаемые для приема навоза из животноводческих зданий промышленных свиноводческих комплексов, как правило, следует располагать за пределами животноводческих зданий. Вместимость резервуаров насосных станций следует назначать, исходя из режимов притока и откачки навозных стоков.
На свинокомплексах промышленного типа с гидравлическими (самотечные, самосплавные) способами удаления навоза навозоприемники (приемные резервуары насосных станций) должны быть оборудованы насосами для перемешивания навоза и перекачки его на сооружения обработки и подготовки к использованию.
4.2. Навозоприемники (приемные резервуары насосных станций) должен быть оборудован решетками с зазорами (не менее 8 мм и не более 50 мм) и механическими или гидравлическими устройствами для перемешивания навозных стоков, предотвращающими выпадение осадка.
Коэффициент часовой неравномерности притока навозных стоков в приемный резервуар для свиноводческих предприятий с гидравлической системой удаления навоза из помещений следует принимать - 2,2.
4.3. Для перекачки жидкого навоза, навозных стоков и жидкой фракции следует использовать погружные и горизонтальные насосы для жидкостей с посторонними включениями. При этом эксплуатационная характеристика горизонтальных насосов по производительности должна быть снижена на 20%.
4.4. Для перекачки неразделенного жидкого навоза следует предусматривать насосы с измельчающими устройствами.
Горизонтальные насосы следует устанавливать под заливом.
Дня перекачки жидкой фракции допускается установка горизонтальных центробежных насосов не под заливом, но с установкой на всасывающем трубопроводе герметичных вакуумбаков, обеспечивающих необходимый подъем стоков из подземных резервуаров.
Диаметр всасывающего трубопровода следует принимать не менее 200 мм, напорного - не менее 150 мм.
Для перекачки жидкой фракции навоза в зависимости от периода года, температуры наружного воздуха и продолжительности эксплуатации допускается использование как сборно-разборных, так и стационарных трубопроводов.
Глубина заложения стационарных трубопроводов должна исключать замерзание стоков в них.
Трубы следует укладывать с уклоном не менее 0,002, обеспечивающим возможность опорожнения всего трубопровода в специальные колодцы.
4.5. Для стационарных навозопроводов, работающих при давлении до 1,0 МПа (10 атм), следует принимать напорные асбестоцементные, чугунные, железобетонные и полиэтиленовые трубы.
При соответствующем обосновании допускается прокладка напорных навозопроводов из стальных труб. Для мобильных навозопроводов следует принимать армированные прорезиненные или полиэтиленовые трубы.
4.6. Гидравлический расчет напорных навозопроводов следует проводить в зависимости от влажности навоза в соответствии с СНиП 2.04.03-85, «Методическими рекомендациями по проектированию систем удаления, обработки, обеззараживания и утилизации навоза и помета» и справочным пособием «Таблицы для гидравлического расчета стальных, чугунных и асбоцементных напорных трубопроводов».
4.7. На поворотах и прямых участках напорного навозопровода через 200-500 м необходимо предусматривать устройство контрольных смотровых колодцев с ревизией; в низких точках напорных навозопроводов следует предусматривать выпуски, а в высоких - вантузы в колодцах.
4.8. С целью исключения образования осадка (заиливания) внутри напорных труб следует предусматривать возможность промывки напорных навозопроводов производственной водой или осветленной жидкой фракцией навоза, либо продувки.
5. Разделение на твердую и жидкую фракции.
5.1. Разделению на твердую и жидкую фракции подвергается жидкий навоз и навозные стоки свинокомплексов промышленного типа мощностью 12 тыс. свиней в год и более. Целесообразность разделения жидкого навоза и навозных стоков на фракции независимо от мощности предприятия в каждом конкретном случае должна быть дополнительно определена, исходя из их влажности, а также требований к дальнейшей обработке, хранению и использованию.
Навозные стоки промышленных свиноводческих комплексах состоят из смеси твёрдых частиц и жидкости. Основная проблема при утилизации навоза заключается в том, чтобы во время отделить твердые частицы прежде,
чем их загрязняющие окружающую среду элементы растворятся в жидкости.
Удаление твердых частиц из жидких стоков навоза является ключевым моментом в решении этой проблемы, цель которого – снизить содержание загрязняющих компонентов навоза, что позволяет продлить срок службы
и снизить объем отстойников, а также упростить технологию внесения, увеличить эффективность биологических очисток и минимизировать вредное влияние на окружающую среду.
5.2 Разделение жидкого навоза и навозных стоков на фракции следует проводить гравитационным, механическим и комбинированными способами.
5.3 Гравитационный способ разделения следует применять на свиноводческих предприятиях в горизонтальных отстойниках накопителях, вертикальных и радиальных отстойниках.
5.4. При разделении жидкого свиного навоза влажностью от 96,5% до 97,5% и навозных стоков в вертикальных отстойниках непрерывного действия с продолжительностью отстаивания до 3-4 часов эффективность отстаивания по сухому веществу следует принимать до 75%, влажность осадка около 94%.
Угол наклона конической части отстойника следует принимать 60°.
Количество отстойников должно быть не менее двух.
Отстойники должны быть оборудованы распределительными камерами, устройствами для гашения пены и удаления всплывающих на поверхность взвешенных частиц.
Влажность навозных стоков, направляемых на осветление после механического разделения в вертикальные, горизонтальные и радиальные отстойники должна составлять не менее 97%.
Влажность образующихся осадков при продолжительности отстаивания не менее 3 ч составляет не менее 96%. При этом предпочтение следует отдавать радиальным отстойникам с эффективностью осветления стоков 70%.
5.5. Удаление осадков навозных стоков из отстойников осуществляют гидростатическими и механическими способами.
Гидростатический напор для удаления осадков из вертикальных отстойников при отстаивании стоков, прошедших дуговое сито или бар банный сепаратор, следует принимать 1,8 м, считая до оси иловой трубы. Диаметр иловой трубы следует принимать 200 мм.
При подаче на вертикальные отстойники навозных стоков без предварительной механической обработки выпуск осадка следует предусматривать снизу отстойников. В этом случае необходимо предусмотреть возможность обратной промывки илопроводов.
При удалении осадка из первичных отстойников механическим способом целесообразно применение плунжерных или винтовых насосов и устройств для пульсодозированной выгрузки и др.
5.6. При разделении жидкого свиного навоза в горизонтальных секционных отстойниках-накопителях периодического действия, глубина которых не должна превышать 2 м, оборудованных донным дренажом, водосливными и шандорными устройствами, их эффективность по сухому веществу следует принимать 65%. Влажность задерживаемой в отстойниках-накопителях (с помощью водосливных устройств и шандоров при закрытом дренаже) твердой фракции следует принимать 90%, после гравитационного обезвоживания осадка при открытом донном дренаже - 75%.
Рабочий объем отстойников-накопителей должен определяться, исходя из природно-климатических условий местности и режима эксплуатации, определяющих время оборота отстойников. Для ориентировочных расчетов удельный объем отстойников-накопителей принимают из расчета 1 м3 на голову единовременно находящегося на предприятии поголовья свиней (включая поросят-сосунов), годовое количество оборотов отстойников-накопителей для условий второй строительно-климатической зоны следует принимать не более двух. Дренажные каналы отстойников-накопителей перед подачей навозной массы должны быть заполнены производственной водой или осветленной жидкой фракцией навоза, а по завершении оборотного цикла- подвергаться обратной промывке.
В целях предотвращения замерзания напорного навозопровода, подачу стоков следует, как правило, предусматривать снизу отстойника-накопителя.
В отстойниках-накопителях необходимо предусматривать: надежную гидроизоляцию и твердое покрытие (бетон, железобетон, асфальтобетон и др.) стенок и днища;
-съезды для транспортных средств с уклоном 1:5;
-донный дренаж из перфорированных труб диаметром не менее
100 мм, уложенных с уклоном 0,003, обсыпанных фильтрующим слоем из гальки или
щебня диаметром 50-70 мм с минимальной начальной глубиной заложения труб не
менее 0,7 м.
5.7. Для механического разделения жидкого навоза и навозных стоков на фракции следует применять установки для отделения крупнодисперсных частиц (дуговые сита) типа СД-Ф-100, центрифуги типа УОН-Ф-835.Б, фильтрующие центрифуги типа ЦН-Ф-50, виброгрохоты типа ГБН-Ф-100, сгустители (центрифуги) типа СВД и процеживатели типа ПСЖ.
Эффективность дуговых сит при разделении навозных стоков свинокомплексов промышленного типа влажностью до 98,9% следует принимать 24,5% по сухому веществу, при влажности 97,8% -25,8% и при разделении жидкого свиного навоза влажностью 96% -35,0%. Влажность отделяемой твердой фракции навозных стоков свиноводческих предприятии после дуговых сит следует принимать 85%.
При разделении на дуговых ситах осадка из первичных отстойников влажностью 93-94% (без предварительного разделения свиных навозных стоков на фракции) и при расходе 35 м3/ч эффективность разделения по сухому веществу следует принимать 41 %, а влажность твердой фракции - 88%.
5.8. Эффективность разделения жидкого навозных стоков на центрифугах ЦН-Ф-50 и УОН-Ф-835Б (при влажности 98%) составляет 45% по сухому веществу, влажность твердой фракции - 82%.
При разделении на фракции диаметр отверстий сетки составляет для жидкого навоза свиней - 1,0-1,8 мм.
5.9. Эффективность разделения навозных стоков на процеживателях типа ПСЖ при влажности стоков 97-98,5% составляет 60%-70%. Влажность твердой фракции - 82-88%
Обезвоживание твердой фракции, полученной после механического разделения жидкого навоза и навозных стоков свинокомплексов промышленного типа на дуговых ситах и центрифугах, процеживателях следует производить в бункерах-дозаторах или при помощи винтовых прессов.
Влажность твердой фракции свиного жидкого навоза после гравитационного обезвоживания в бункерах-дозаторах следует принимать на винтовых прессах типа ВПО-20 - до 70%, типа ПЖН-68М - до 75%, содержание сухого вещества в жидкой фракции (фугате) до 8% исходного содержания его в твердой фракции.
5.10 Наибольшая эффективность разделения навозных стоков свиноводческих предприятий достигается при использовании шнековые пресссепараторы типа СМ- 260 и -300.
Жидкий навоз содержит свободную жидкость и связанную жидкость. Свободная жидкость отделяется самотеком, при помощи силы тяжести; связанная жидкость находится в твѐрдых составляющих навоза.
Отстаивание, процеживание, стационарные и вибрационные сита могут удалить только часть свободной жидкости, а связанную жидкость они вообще не могут удалять. Кроме того, эти методы эффективны только при переработке очень жидких отходов с содержанием сухих веществ менее 4%, что усложняет проблему разделения стоков с высокой концентрацией сухих веществ (5…12%), получаемых сплавными и механическими системами навозоудаления.
Шнековый пресс-сепаратор позволяет отделить всю свободную жидкость и часть связанной воды, обеспечивая отжим стоков с содержанием сухих веществ от менее 1% до 12% до концентрации сухих веществ в отжатой твердой фракции более 35%...40%.
Сепаратор представляет собой пресс, в котором прессование производится при помощи шнека, что позволяет выдавливать всю свободную воду и большинство связанной воды, отделяя до 85% твердых составляющих из стоков навоза в достаточно сухие вещества.
Эффективность отделения твердых составляющих зависит от размера ячеек сита, шнека, модели, типа твердых составляющих и расположения противовесов системы, определяющих степень обратного давления. При этом степень отделения сепаратором азота, фосфора, калия и других питательных веществ колеблется от 10 до 80%.
Прессовый шнековый сепаратор производится в различных модификациях, с широким выбором конструкции шнеков, загрузочных горловин, ситовых цилиндров с размером ячеек от 0,25 мм до 1,00 мм. Это позволяет эффективно применять сепаратор при различной влажности стоков.
Производительность зависит от влияния различных факторов: исходной концентрации стоков, температуры, типа корма, срока хранения навоза, положения противовесов, регулирующих степень отжима.
Обезвоживание твердой фракции, полученной после разделения жидкого навоза на шнековых пресс-сепараторах СМ-260 и -300 не требуется.
Пример устройства участка разделения навозных стоков (рис 22).
Насос с измельчающим механизмом перекачивает однородную жижу в сепаратор. Благодаря встроенному перепускному клапану избыток стоков возвращается обратно в резервуар самотеком.
Стоки, попав в камеру шнека, сначала обрабатывается вибрационным устройством, это способствует более эффективному обезвоживанию на последующих стадиях сепарирования.
Далее, вначале часть свободной воды отделяется через сито самотёком, отделённая вода выходит через выпускной патрубок сепаратора. Вода, связанная в твёрдых составляющих, выжимается при прессовании массы, которое происходит на последних двух витках шнека. Сила прессования регулируется противовесами, определяющими обратное давление, создаваемое на выходе сепаратора.
После отделения твердый материал может быть свален в кучу или перевезён обычными средствами механизации, например, трактором с прицепом. Отделённая жидкость может использоваться повторно, например, в промывочной системе, или помещена на хранение в отстойник в качестве жидкого удобрения.
Сепаратор производит твёрдые составляющие с оптимальными для компостирования влажностью и структурой (пористая, рассыпчатая масса с низкой адгезией), что обеспечивает превосходное движение в них воздуха во время компостирования и уменьшает неприятный запах. Отделённые твёрдые составляющие непривлекательны для мух, крыс и других паразитов.

Рис. 22. Пример устройства участка разделения навозных стоков.
Жидкость, отделённую сепаратором, можно перекачивать обычным насосом для сточных вод или транспортировать самотеком даже по тонким трубам, поскольку в ней содержится достаточно мало сухих веществ и различных примесей. Жидкая фракция, отделённая при помощи сепаратора, содержит только мелкодисперсные твёрдые частицы, находящиеся в растворенном состоянии, поэтому она может быть легко очищена и биологическими методами. Жидкая фракция после сепарации характеризуется высоким содержанием положительных биогенных элементов и благоприятным соотношением питательных веществ Фосфора, Азота и Калия – 1,4:1,0:1,6. Жидкая фракция используется в качестве органического удобрения при орошении почв. При использовании жидкости в качестве удобрения почвы она может перекачивается насосами высокого по длинным трубам для использования в системах внутрипочвенного орошения, дождевания и капельного полива, при этом, не создавая загрязнений в трубопроводах.
Сепаратор может быть смонтирован на транспортной тележке для переработки стоков с нескольких ферм или отстойников. Отделенная жидкость из отстойника или лагуны выкачивается без предварительного перемешивания и может быть использована для орошения вместо аммиачной воды. Поэтому лагуна может быть сооружена с использованием пленки, т.к. не требуется ее очистка от твердой фракции.
6. Переработка жидкой фракции.
6.1. Жидкая фракция навозных стоков перерабатывается путѐм естественной или искусственной биологической очистки.
Естественная биологическая очистка
6.2. Естественная биологическая очистка осуществляется путем хранения в навозохранилищах при промышленных свиноводческих комплексах или в биологических прудах.
Срок хранения жидкой фракции навозных стоков в навозохранилищах при свинокомплексах промышленного типа 12 месяцев.
Примечания:
Допускается хранение не разделенных на твердую и жидкую фракции навозных стоков на свинокомплексах промышленного типа мощностью до 12 тыс. свиней в год. При этом навозохранилища должны быть оборудованы системами перемешивания навозных стоков (механические мешалки или применение гидравлических систем перемешивания навозных стоков).
6.3 Естественную биологическую очистку жидкой фракции навозных стоков следует осуществлять в биологических прудах различных типов и конструктивного исполнения:
- анаэробно-аэробных;
- с естественной и искусственной аэрацией;
- одно- и многоступенчатых;
- БОКС-прудах.
6.4 Биологические пруды рекомендуется применять:
- для доочистки жидкой фракции навозных стоков, прошедшей
биологическую очистку;
- в качестве самостоятельных сооружений для естественной
биологической очистки жидкой фракции навозных стоков при круглогодичной работе
в районах со среднегодовой температурой воздуха выше 10°С;
- для работы во 2 строительно-климатической зоне страны с
мая по октябрь месяц.
Работа прудов обеспечивается при температуре воды от 4°С до 35°С.
Прудам должны предшествовать отстойники.
Пруды следует устраивать преимущественно на участках со слабо фильтрующими грунтами.
Конструкция прудов должна предусматривать возможность их периодической очистки.
6.5 Анаэробные пруды следует применять для предварительной переработки жидкой фракции навозных стоков с высокой концентрацией от массы сухого вещества.
6.6 Вторичные вертикальные отстойники для уплотнения ила должны проектироваться исходя из пребывания в них аэрированной жидкости не менее 2 ч., считая по максимальному притоку, без учета объема загрязнения и последующей ее обработкой в аэробных условиях.
6.7 Нагрузку по ВПК на анаэробные пруды-накопители следует принимать 330-560 кг/га в сутки при глубине прудов 3,5-6,0 м.
Очистка анаэробных прудов-накопителей должна проводиться не реже одного раза в три года.
6.8 В аэробных водорослевых прудах ведущая роль по переработке органических веществ принадлежит одноклеточным водорослям (фитопланктону), которые, в основном, обеспечивают пруды кислородом.
Оптимальной концентрацией загрязнения поступающей жидкой фракции навозных стоков по ВПК для аэробных прудов следует считать 200-300 мг/л, максимальной - 800 мг/л.
В аэробных рачковых и рыбоводных прудах нагрузка по ВПК должна составлять 50-60 кг/га/сут. ВПК поступающей жидкой фракции в рачковых прудах не более 120 мг/л, а в рыбоводных - 40 мг/л.
6.9 Аэробные биологические пруды могут быть проточными или контактными с периодическим наполнением и сбросом сточных вод.
Число ступеней в проточных прудах должно быть не менее двух. В аэробных прудах достигается дегельминтизация жидкой фракции навозных стоков.
6.10 В ступенчатых проточных (серийных) биологических прудах жидкость последовательно переливается из одной ступени в другую. Средняя нагрузка по ВПК должна приниматься в пределах 50-70 кг/га в сутки.
Глубину в первых ступенях следует принимать не более 1,5 м, в последующих - не более 1,0 м.
6.11 В контактных прудах с массовым развитием фитопланктона нагрузку по ВПК на поверхности следует принимать 60-120 кг/га в сутки при глубине 0,6 м.
6.12 Все пруды должны иметь шахтные водосбросы и быть спланированы с уклоном не менее 0,005 в сторону водосброса или иметь канавки, обеспечивающие сток воды из пруда.
Ширина оградительных дамб и плотин без проезда поверху должна быть не менее 2 м, а разделительных - 1,0-1,5 м. Превышение гребня дамб над максимальным уровнем зеркала воды в прудах следует принимать с учетом высоты волны, но не менее 0,5 м.
6.13 Для очистки жидкой фракции навозных стоков допускается использовать систему анаэробно-аэробных многоступенчатых биологических прудов, состоящих, как правило, из четырех пяти последовательных ступеней сооружений:
- 1 ступень - анаэробные пруды-накопители жидкой фракции;
- 2 ступень - аэробные водорослевые пруды;
- 3 ступень - аэробные рачковые пруды;
- 4 ступень - аэробные пруды для выращивания сеголеток рыб;
- 5 ступень - пруд-накопитель очищенных стоков.
Глубину прудов следует принимать: 1 и 5 ступеней ~ 3,5-6,0 м- 2 ступени - 0,6 м; 3 ступени - 0,8 м и 4 ступени - 1,0-1,2 м.
Сроки эксплуатации прудов: 1 и 5 ступеней - круглогодично- 2-4 ступени - в теплый период года при температуре наружного воздуха более 5-10°С и суммарной интенсивности солнечной радиации не мене 200 кал/см2 сут.
6.14 Ориентировочный объем аэробных прудов следует приниматьисходя из расчета 10 м3
/гол. животных (включая поросят-сосунов) с аз делением: 15% объема - на пруды 2 ступени, 15% - на пруды 3 ступени и 70% - на биопруд 4 ступени.
В очищенном навозном стоке содержание растворенного кислорода следует принимать до 6 мг/л, БПК5- 10-15 мг/л.
6.15 Аэробные пруды должны быть оборудованы донными водоспусками, а рыбоводные пруды - рыбоуловителями. Биопруд 4 ступени должен соответствовать правилам проектирования рыбоводных прудов
6.16 В прудах 4 ступени следует выращивать рыбопосадочный материал (сеголетки карпа, карася, толстолобика и амура)
6.17 Жидкую фракцию свиных навозных стоков целесообразно очищать в рыбоводно-биологических прудах.
Наибольшая эффективность очистки достигается при устройстве пяти ступеней прудов.
Искусственная биологическая очистка жидкой фракции.
6.18 Проектирование сооружений искусственной биологической очистки жидкой фракции навозных стоков допускается только при реконструкции и расширении очистных сооружений действующих предприятий с гидросмывной системой удаления навоза при:
- недостатке площадей сельскохозяйственных угодий для
внесения стоков и наличия достаточного объема воды для разбавления стоков при
орошении;
- неблагоприятных климатических, геологических,
гидрогеологических условиях, когда не представляется возможность внесения
стоков в почву, а также при сбросе их на городские или иные очистные
сооружения.
6.19 Биологическую очистку жидкой фракции навозных стоков и жидкого навоза, как правило, осуществляют искусственным или естественным способами в аэротенках, рыбоводно-биологических прудах, на ирригационных полях утилизации.
Примечание - Проектирование сооружений искусственной биологической очистки для нового строительства свиноводческих комплексов и птицефабрик допускается в исключительных случаях при соответствующем технико-экономическом обосновании и использовании новых высокоэффективных сооружений, безотходных технологий по согласованию с территориальными органами государственного экологического контроля, ветеринарного и санитарного надзора.
6.20 Процесс искусственной биологической очистки жидкой фракции навозных стоков и жидкого навоза осуществляется в аэротенках механическим, пневматическим, гидропневматическим и комбинированным способами аэрации.
При расчете аэротенков следует руководствоваться данными, приведенными в таблице 7.
Таблица 7
|
Режим работы аэротенков |
Расход кислорода снятой БПК, г/г |
БПК входящего стока, мг/л |
Доза ила, г/г |
Нагрузка на ил БПК, мг/л |
Прирост ила от снятой БПК, % |
|
Продленной аэрации |
1,8 |
75 |
10 |
100 |
40 |
|
Повышенной нагрузки |
1,6 |
180 |
8 |
200 |
50 |
|
Высокой нагрузки |
1,5 |
570 |
6 |
300 |
55 |
6.21 При механической аэрации навозных стоков глубину аэротенков следует назначать до 4,5 м, ширину - в зависимости от гидравлического радиуса действия, кратного 5-6 диаметрам рабочего колеса рототурбины.
При пневматическом и комбинированном (гидропневматическом) способах аэрации рабочую глубину аэротенков следует принимать в пределах 3-6 м, отношение ширины к глубине - от 1:1 до 2:1.
Технологические параметры аэротенков следует определять расчетом в соответствии с СНиП 2.04.03-85.
6.22 При механическом способе аэрации степень очистки жидкой фракции следует принимать: по ХПК - до 300 мг/л, содержание взвешенных веществ - до 120 мг/л, общего азота - до 120 мг/л, фосфора - до 90 мг/л, калия - до 210 мг/л.
Соотношение значений ХПК, БПК и БПК5 навозных стоков, прошедших биологическую очистку, следует принимать в соответствии с таблицей 8.
Таблица 8
|
Наименование показателей |
Величина, мг/л |
||||||
|
ХПК |
00 |
00 |
00 |
00 |
00 |
00 |
000 |
|
БПК |
5 |
15 |
55 |
00 |
50 |
10 |
00 |
|
БПК5 |
0 |
5 |
5 |
0 |
15 |
45 |
00 |
6.23 При гидропневматическом и комбинированном способах аэрации степень очистки жидкой фракции навоза следует принимать:
- ХПК - до 200 мг/л;
- взвешенных веществ - до 30 мг/л;
- БПК5 - до 20 мг/л;
- азота аммонийного - до 30 мг/л;
- нитритов - до 0,5 мг/л;
- нитратов - до 0,5 мг/л;
- фосфатов - до 35 мг/л.
Глубокая очистка жидкой фракции навозных стоков и жидкого навоза в аэротенках при гидропневматической аэрации обеспечивается за счет комбинированной анаэробно-аэробной обработки массы и одновременно протекающих процессов нитри-, денитрификации и биологической очистки стоков.
6.24 При необходимости раздельного осуществления процессов биологической очистки жидкой фракции навозных стоков и жидкого навоза глубину емкости для нитри-, денитрификации следует принимать не менее 2 м, объем необходимо рассчитывать, исходя из концентрации аммонийного азота и гидравлической нагрузки. При этом начальная концентрация NH4 не должна превышать 800 мг/л.
Оптимальными параметрами процессов нитри-, денитрификации жидкой фракции навозных стоков следует принимать: рН - 7,6-8,5, температуру - 30°С.
Параметры биологически очищенных навозных стоков после нитри-, денитрификации должны составить:
- ХПК-до 300 мг/л;
- БПК - 30-40 мг/л;
- NH4 - до 10 мг/л;
- N03-N02-flO 5 мг/л;
- фосфаты - до 25 мг/л.
Примечание - Наиболее эффективная очистка жидкой фракции навозных стоков от окислов азота способом нитри-, денитрификации при раздельном протекании процессов обеспечивается при предварительной анаэробной обработке стоков в метантенках.
6.25 Содержание питательных веществ в избыточном активном иле следует принимать: общего азота - 11%, фосфора - 8,8%, калия - 3% активного ила; для радиальных отстойников время отстаивания следует назначать не менее 3 ч.
Непрерывную рециркуляцию активного ила из вторичных отстойников в аэротенки или объем возвратного ила следует определять расчетом.
Гидростатический напор для удаления ила следует принимать 1,2-1,5 м.
Угол наклона конической части отстойников - 60°.
7. Переработка твёрдой фракции.
В современных условиях, когда государственной политикой является приоритетное решение проблем охраны окружающей среды и создания благоприятной для обитания человека среды, основная деятельность свинокомплексов промышленного типа наряду с производством свинины и продуктов её переработки, должна быть направлена на экологизацию производства и перевод предприятий на безотходные технологии, переработку и эффективное использование в качестве органических удобрений всего объема получаемого навоза.
Это позволит:
- поднять эффективность производства и обеспечить
экологическую безопасность предприятий;
- перевести предприятия на безотходные технологии, повысить
продуктивность сельскохозяйственных угодий и рационально использовать природные
ресурсы.
7.1 Снижение влажности полужидкого и подстилочного навоза и твердой фракции с целью подготовки их к биотермической обработке для обеззараживания от возбудителей инфекционных, инвазионных заболеваний и девитализации (дегельминтизация и ликвидация всхожести семян сорных трав) возможно при организации на свинокомплексах промышленного типа производства компостов.
Компостированию целесообразно подвергать навоз влажностью до 92%.
Примечания
1 Необходимость компостирования навоза влажностью более 92% должна быть обоснована технико-экономическим расчетом с учетом наличия достаточного количества наполнителя соответствующего качества, принятой системой земледелия, экологического состояния почв, гидрогеологических и других местных условий.
2 Компостирование твердой фракции навоза при влажности не более 75% осуществляется в чистом виде без добавления влагопоглощающих наполнителей.
7.2 Для компостирования навоза в качестве наполнителя могут быть использованы: торф, солома, опилки и другие органические влагопоглощающие компоненты.
Оптимальная влажность компостируемой смеси должна составлять не более 70%, отношение углерода к азоту 20:1- 30:1, рН - 6,0-8,0.
Исходная влажность компонентов для приготовления смеси должна составлять, не более:
- навоза и помета - 92%;
- торфа - 60%; сапропеля - 50%;
- опилок - 30%; соломы - 24%; древесной коры - 60%;
- лигнина - 50%. Примечания
1 Зольность торфа - 10-25%, остальные параметры - в соответствии с ГОСТ 4.105-83.
2 Зольность соломы не более 20%, размеры частиц - до 200 мм. Для измельчения соломы могут быть использованы агрегаты ПИК-Ф-10, ИРТ165, ЛИС-ЗАи ФН-1.4.
3 Влагопоглощающая способность компонентов-наполнителей должна быть не менее 200%.
7.3 Компостирование навоза осуществляется, как правило, на прифермских открытых гидроизолированных площадках и в стационарных механизированных цехах с твердым покрытием мобильными или стационарными средствами.
В теплый период года приготовление компостов можно осуществлять на специально подготовленных полевых площадках, располагаемых в районе удобряемых компостом сельскохозяйственных угодий.
Примечание - Для приготовления компостной смеси могут быть использованы смесители типов С-3, С-7, С-12, С-30, МПК-Ф-1, ПФ-Э-1А и разбрасыватели удобрений типов РОУ-6 и ПРТ-16.
7.4 Технологический процесс компостирования навоза и помета осуществляется пассивным и активным способами.
Режим компостирования в каждом конкретном случае назначают в зависимости от исходных параметров компостируемой смеси, природноклиматических условий, требований к готовому компосту, эпизоотической ситуации на предприятиях и экологической обстановки.
Пассивный (традиционный) способ компостирования.
7.5 При пассивном (традиционном) способе технологический процесс компостирования осуществляют в естественных условиях в буртах на специализированных участках свинокомплексах промышленного типа или на полевых площадках.
Технологический процесс компостирования предусматривает смешивание компонентов смеси, формирование буртов, выдерживание смеси в буртах, ее аэрацию и хранение готового компоста.
Размеры компостных буртов зависят от вида принятого наполнителя (влагопоглощающего материала). При использовании торфа, опилок, коры лигнина высота буртов должна быть 2-2,5 м, соломы - 3 м, а ширина буртов2,5-6 м. Длина бурта - произвольная, общая масса смеси для одного бурта обычно не менее 100 т. Между рядами буртов компостной смеси необходимо предусматривать технологические проезды шириной не менее 2,5-3,0 м.
При выдерживании навоза и компоста в буртах при достижении температуры 60°С во всех частях компоста срок выдержки должен быть не менее 2 мес. в теплый период года и не менее 3 мес. в холодный период года.
При компостировании навоза и помета в смеси с корой и опилками продолжительность процесса увеличивается в 1,5-3 раза.
При снижении температуры массы в бурте до 25-30°С необходимо провести аэрацию смеси путем перемешивания слоев.
В зимнее время, при температуре окружающей среды ниже 0°С компостную смесь рекомендуется укладывать в один сплошной штабель высотой 1,0-2,5 м.
При наступлении устойчивых положительных температур смесь аэрируем и укладывается в бурты соответствующих геометрических размеров.
7.6 Для сбора и отвода жидкости, атмосферных осадков на открытых площадках приготовления компостной смеси, компостирования и хранения влагопоглощающих компонентов следует предусматривать жижесборники.
Сами площадки должны иметь уклон 0,002-0,003 в сторону жижесборников или отводные канавки (лотки), расположенные по всему периметру.
7.7 Разложение органических веществ в компосте сопровождается значительной потерей массы и переходом биогенных веществ в легко усвояемые растениями соединения. Потери биогенных веществ и скорость биотермического процесса зависит от плотности укладки. При рыхлой укладке с плотностью 600-700 кг/м3 биотермический процесс протекает 2-3 месяца, при укладке плотностью 900 кг/м3 -4-6 месяцев, но при условии, что бурты не промерзают.
7.8 Потери органических и питательных веществ в период компостирования снижаются путем укрытия буртов слоем готового компоста, торфа или земли слоем 0,2-0,3 м.
Ускоренное компостирование.
7.9 Ускоренное компостирование (метод биологической ферментации) основан на управлении развитием аэробных бактерий. Предварительно подготовленная компостная смесь (навоз или помет с влагопоглощающими материалами - торф, солома и др.- и минеральными добавками) оптимальных агрохимических свойств (влажность, кислотность, соотношение углерода и азота) помещается в специальную камеру (биоферментер или реактор), в которой создаются определенные условия для интенсивного развития аэробных бактерий.
7.10 Технологический процесс ускоренного компостирования протекает в искусственных условиях при непрерывной аэрации компостной смеси путем принудительной подачи воздуха в слой массы, находящейся в биоферментере. Полезная высота слоя смеси 2 м. Компостная смесь на входе в биоферментер должна быть тщательно перемешана и иметь температуру не менее 10°С.
Удельный расход воздуха должен составлять не менее 0,6 м3/кг компостной массы, температура подаваемого воздуха 10°С-50°С в зависимости от температуры наружного воздуха. Продолжительность процесса компостирования смеси - 5-8 суток.
7.11 По принципу работы биоферментеры и реакторы подразделяются на установки периодического и непрерывного действия. Наиболее распространенной является технология ускоренного компостирования навоза в периодическом режиме. Получаемый продукт - компост многоцелевого назначения представляет собой однородную, 55-70% влажности, сыпучую массу темно-коричневого цвета без неприятного запаха.
Биоферментер представляет собой сооружение из кирпича размером 5м х 10 м (50 м2) и высотой до 4,5 м, в пол которого вмонтированы восемь перфорированных труб, тупиковых с одного конца, и объединенных с другого конца общим воздуховодом. На задней стене камеры (с наружной стороны) устанавливается вентилятор, подающий через соединительный рукав воздух в воздуховод и через трубы - в органическую смесь.
Передняя часть камеры оборудуется двухсекционными металлическими воротами. Задняя стена ферментера и ворота имеют отверстия для замера температуры и содержания кислорода в компостируемой массе.
После загрузки компостируемой массы в ферментер газоанализатором замеряется количество кислорода в массе и устанавливается продолжительность вентилирования.
При закладке массы влажностью 55-65% с начальной температурой
около 10 °С температура массы через 10-12 часов поднимается до 40-50 °С, а затем до 60-75°С.
Падение температуры в смеси до 40-30°С свидетельствует об окончании процесса ферментации.
Органические компоненты загружаются в биоферментер навозоразбрасывателем, а выгрузка готового биоудобрения осуществляется фронтальным погрузчиком на открытую площадку для его хранения.
Биоферментеры могут возводиться также из железобетона и других материалов.
Для компостирования твердой фракции свиного навоза целесообразно использовать технологии ускоренного компостирования на установках заводского типа УЭК-5, УЭК-10 и др., работающих в комплекте со средствами механизации (транспортѐры, смесители, дробилки и др.). В зависимости от объема производства биоудобрений из могут использоваться модули из любого числа секций.
7.12 При больших объемах переработки навоза и помета используют биотраншеи, состоящие из проездной дороги, траншеи и ферментера.7.13 Установками непрерывного действия получения биогумуса из навоза и помета являются реакторы барабанного типа различных конструкций (разработки СЗ ВНИИМЭСХ, ВНИИПТИОУ и др.).
7.14 Для получения из навоза компостов заданных свойств, сбалансированных по элементам питания и составу удобрений, усиления микробиологических процессов, протекающих при компостировании, уменьшения потерь питательных веществ в компостную смесь целесообразно включать минеральные добавки (фосфоритную муку, фосфогипс, порошковидный суперфосфат и др.), а также использовать «микробные закваски» (ассоциаций из группы активных термофильных микроорганизмов).
При рН исходного навоза в пределах 7,0 и при рН торфа до 5,0 в компостную смесь следует добавлять фосфоритную муку или фосфогипс, при рН торфа более 5,0 - суперфосфат в количестве 15-ЗС кг на 1 т торфонавозной смеси.
Примечание - Целесообразность, сроки смешивания и виды минеральных удобрений, подлежащих добавлению в компостную смесь, устанавливают соответствующие службы в зависимости от конкретных условий производства.
Вермикомпостирование.
7.15 Одним из способов получения экологически чистого, высококачественного удобрения навоз является вермикомпостирование.
Подготовку исходной смеси следует осуществлять аналогично подготовке компостной смеси.
Приготовленный компост укладывается на площадку с уплотненным грунтовым или твердым покрытием в бурт высотой 1,5-2,0 м. Длина бурта зависит от объема производства биогумуса. Для создания более однородной структуры базового субстрата бурт необходимо подвергать не менее трехразовой перебивке. После того как температура внутри бурта снижается, процесс разложения прекращается, полученный субстрат используется в качестве корма для червей.
Исходная смесь для вермикомпостирования должна быть однородной, рыхлой, без посторонних включений и иметь:
- влажность - 75-85%;
-рН- 6,8-7,2;
-соотношение C:N - 20:1;
- содержание минеральных веществ-до 10%;
-сырого протеина - не более 25%;
-содержание аммиака не более 0,5% (не ощущается запах);
-отсутствие значительных количеств сероводорода (не
ощущается запах);
-достаточную насыщенность кислородом (необходима регулярная
аэрация)
Параметры конечного продукта - биогумуса должны иметь:
-влажность - 70%;
-рН-6,5-7,5;
-азот общий - 1,2% а.с.в. (абсолютно сухого вещества);
-К2О-0,84 а.с.в.;
-Р2О5- 1,1% а.с.в.;
-органические вещества - 52% а.с.в.;
-уровень общей микробной контаминации КОЕ/г не более
3,5x105-7 (КОЕ - колониообразующие единицы);
-отсутствие патогенной микрофлоры, яиц и личинок гельминтов.
7.16 Вермикомпостирование подготовленного субстрата следует проводить круглогодично в закрытых отапливаемых помещениях на нишах и в напольных грядах, в теплое время сезонно (при температуре 10°С и выше) -на открытых площадках при ферме в напольных грядах.
Ширину стеллажей и напольных гряд следует принимать до 1,0-1,2 м, длину - произвольно; толщина слоя субстрата 15-20 см.
Удельную производительность сооружений вермикомпостирования следует принимать для закрытых помещений и открытых площадок соответственно: по исходному субстрату - 1,5 и 0,7 т/м2, готовому биогумусу -и 0,33 т/м2, по биомассе вермикультуры - 22 и 10,5 кг/м2 в год.
Склад для хранения готовой продукции (биогумуса) изолируют капитальной стеной от производственного цеха, а в местах сообщения оборудуют дезковрики.
8. Анаэробная обработка навозных стоков
8.1 Анаэробной обработке следует подвергать бесподстилочный навоз, смесь осадков отстойников и других продуктов переработку и очистки навозных стоков.
8.2 Технология анаэробного сбраживания (биогазовая) - рекомендована для подготовки к использованию бесподстилочного жидкого навоза при влажности не более 94% методом анаэробного сбраживания на биоэнергетических установках с одновременным получением высококачественного органического удобрения и метансодержащего газа.
8.3 Анаэробное сбраживание обеспечивает дегельминтизацию, потерювсхожести семян сорняков, подавление патогенных форм микроорганизмов, повышению удобрительной ценности обрабатываемого продукта и получению биогаза.
8.4 Технология подготовки жидкого навоза к использованию методом анаэробного сбраживания предусматривает подогрев до заданной температуры и сбраживание в герметичных реакторах (ферментерах) навозных стоков с поддержанием регламентированных параметров технологического процесса, сбор и использование биогаза и сброженной массы по назначению.
8.5 К технологическому процессу подготовки навоза и продуктов переработки и очистки навозных стоков к анаэробному сбраживанию предъявляются следующие требования:
- подготовленная масса должна быть свежей с максимальным содержанием органического вещества, иметь максимально высокую температуру;
- масса должна быть гидравлически транспортабельной, гомогенной по составу, однородной по концентрации твердых и взвешенных веществ и равномерно поступать на сбраживание.
Она не должна содержать включения размером более 30 мм и твердые частицы, плотность которых существенно превышает плотность жидкости (бетон, глина, песок и др. посторонние включения).
Оптимальные параметры массы для анаэробного сбраживания:
а) влажность - 90-95%;
б) зольность - 15-16%;
в) рН-6,9-8,0;
г) содержание жирных кислот - 600-1500 мг/л;
д) щелочность - 1500-3000 мг СаС03 /л; e)C:N-(10-16):1.
Для обеспечения оптимального соотношения C:N и получения большего количества биогаза допускается добавлять в сбраживаемую массу другие органические отходы, в т.ч. навоз разных видов животных и помет птиц.
Сбраживаемая масса не должна содержать веществ, подавляющих жизнедеятельность метанобразующих микроорганизмов и ингибирующих технологический процесс анаэробного сбраживания больше допустимых концентраций. К ним относятся различные формы азота и большинство тяжелых, щелочных, щелочноземельных металлов, сульфидов, кислорода, антибиотиков, дезинфицирующих средств и других веществ.
8.6 В качестве основных параметров технологического процесса анаэробного сбраживания жидкого навоза и бесподстилочного помета следует принимать температуру и продолжительность сбраживания.
Температура сбраживания должна задаваться исходя из принятого режима сбраживания навоза или помета.
8.7 Выбop режима сбраживания следует производить на основе технико-экономических расчетов с учетом природно-климатических условий, ветеринарного состояния свиноводческого предприятия и количественно-качественных параметров навоза, санитарно-гигиенических характеристик и требований к использованию сброженного навоза, наличия площадей и состояния сельскохозяйственных угодий, вида культур, состояния и типа почв и других, условий.
8.8 В общем виде система состоит из навозосборника с гомогенизатором, насосов, теплообменников, метантенков, газгольдера, цеха разделения (при больших объемах навоза), промежуточных емкостей и сооружениями для хранения сброженной массы.
Основными технологическими параметрами биоэнергетических установок для подготовки навоза к использованию являются температура обработки, продолжительность сбраживания и связанная с ней доза загрузки метантенка, степень распада органического вещества навоза и количество получаемого биогаза, энергетический потенциал системы, удобрительный потенциал сброженной массы и др.
Техническими решениями систем анаэробной переработки жидкого навоза (помета) в метантенках приняты следующие технологические параметры биоэнергетических установок:
- температура сбраживания, ос - 33…38
- доза загрузки метантенка, % - до 10
- степень распада органического вещества навоза, % - до 40
- удельное количество образующегося биогаза, м3/сут на 1
голову:
свиньи на откорме - 0,20…0,25
молодняк крс - 1,40…1,80
коровы - 1,80…2,20
8.9 Преимуществами данной технологии являются:
- сокращение сроков подготовки жидкого навоза к использованию
(более чем в 10 раз) и их использование обработанной массы без всяких
ограничений;
- выполнение ветеринарно–санитарных, гигиенических и
экологических требований за счет обезвреживания, обеззараживание, дезодорации и
стабилизации состава сброженной массы, снижения ее общей микробной
обсемененности и сокращения сроков хранения и использования навоза (помета), а
также снижение эмиссии вредных веществ в атмосферный воздух;
- получение и использование нетрадиционного источника
энергии –высококалорийного горючего газа - для горячего водоснабжения,
отопления, приготовления пищи, выработки электроэнергии, заправки газобаллонных
автомобилей, получение кормового белка, серы и др. (по экологическим
характеристикам биогаз на 75 % чище дизельного топлива и на 50 % чище бензина,
токсичность для человека на 60 % ниже, а продукты его сгорания практически не
содержат канцерогенных веществ);
- выполнение агрономических требований за счет подавления
всхожести семян сорных растений и увеличения доли аммонийного азота в
подготовленном удобрении, при его внесении в почву повышение урожайности
сельскохозяйственных культур составляет до 25% и др.
8.10 Для анаэробного сбраживания бесподстилочного навоза следует принимать два режима:
-мезофильный с диапазоном температур - 33-38°С;
-термофильный с диапазоном температур - 53-55°С. Для районов
с умеренным климатом предпочтение следует отдавать мезофильному режиму.
Термофильный режим сбраживания бесподстилочного навоза должен назначаться преимущественно по указанию ветеринарной службы.
8.11 Продолжительность анаэробного сбраживания навоза в метантенках следует назначать в пределах 5-20 суток с учетом факторов:
- величины дозы загрузки сбраживаемой массы;
- принятой температуры сбраживаемой массы;
- скорости реакции, зависящей от вида сбраживаемой массы;
- степени разложения органического вещества;
- требований к качеству сброженного навоза и др.
8.12 В процессе анаэробной обработки происходит разложение органического вещества навоза и помета с выделением биогаза с теплотворной способностью не менее 23 МДж/м3 (5500 ккал/м3).
При анаэробном разложении 1 кг сухого органического вещества получается до 1,25 м3 биогаза плотностью от 0,8 до 1,2 кг/м3, содержащего до 65-80% метана.
8.13 Количество образуемого биогаза зависит от вида и состава навоза, продолжительности сбраживания, степени распада органического вещества и других факторов.
При дозе загрузки метантенков 10% и степени разложения органического вещества до 40% ориентировочное количество выделяемого биогаза с 1 кг органического вещества бесподстилочного навоза составляет 400 л.
8.14 Метантенки следует проектировать металлическими или железобетонными.
Количество метантенков должно быть не менее двух, обеспечивающих оптимальные условия анаэробной ферментации и позволяющих при вспышке инфекционных болезней перевести работу метантенков с проточного на цикличный режим.
8.15 Объем метантенков следует определять в зависимости от влажности поступающей массы по суточной дозе загрузки по таблице 59 СНиП 2.04.03-85.
Оптимальная суточная доза загрузки массы при влажности навоза 90-95% составляет в среднем 15%, что соответствует продолжительности сбраживания в течение 7 суток.
Объем метантенка следует определять с учетом коэффициента расширения сбраживаемой массы.
8.16 Загрузку сбраживаемой массы в метантенк следует предусматривать равномерными дозами в течение суток.
8.17 В составе сооружений анаэробной обработки навоза в зависимости от их назначения и мощности следует проектировать:
-блок приема и усреднения навоза по
количественно-качественным параметрам с оборудованием для отделения посторонних
включений, гомогенизации, измельчения и подачи навоза на дальнейшую обработку;
-блок подготовки навозной массы к анаэробному сбраживанию с
оборудованием для нагрева, подогрева, выдерживания и др.;
-блок анаэробного сбраживания навоза в составе метантенков,
анаэробных фильтров с мостиками, площадками, трубопроводами, арматурой,
предохранительным и другим оборудованием;
-блок обработки сброженной навозной массы с оборудованием
для ее разделения и обезвоживания;
-блок сбора и хранения сброженной навозной массы и ее
твердой и жидкой фракции;
-промежуточные емкости и насосные установки для перекачки
навозной массы по сооружениям;
-блоки сбора, хранения, использования и переработки биогаза;
-блоки очистки и доочистки сброженной жидкой фракции и др.
8.18 На отопление метантенка и подогрев поступающей массы до мезофильной температуры зимой в условиях средней полосы России затрачивается 70% получаемого биогаза.
8.19 Проектирование систем сооружений анаэробной обработки и подготовки навоза и помета к использованию следует осуществлять в соответствии с СНиП 2.04.03-85.
В процессе стабилизации, под воздействием аэробных микроорганизмов в присутствии кислорода происходит биохимическое разложение органических веществ, содержащихся в навозе. Часть вещества субстрата используется для построения новых клеток микроорганизмов, другая часть путем последовательных реакций превращается в углекислый газ и воду, причем этот процесс носит экзотермический характер.
9. Сбор и обработка производственных сточных вод и поверхностных стоков
9.1 В проектах систем сбора, хранения и подготовки к использованию навозных стоков свинокомплексов промышленного типа необходимо предусматривать сбор и соответствующую обработку производственных сточныхвод и поверхностных стоков, образующихся на территории предприятий.
9.2 Методы обработки и необходимая степень очистки производственных сточных вод свинокомплексов промышленного типа должны определяться в зависимости от местных условий с учетом максимально возможного их использования для орошения сельскохозяйственных угодий.
9.3 Сточные воды от ветеринарных объектов (карантина, ветеринарного пункта, ветлаборатории и др.) должны собираться самостоятельной канализационной сетью и перед выпуском их в общую сеть подвергаться обеззараживанию. Для обеззараживания сточных вод от ветеринарных объектов необходимо предусматривать контактные отстойники.
Обеззараживание осуществляют в соответствии с «Ветеринарносанитарными правилами подготовки к использованию в качестве органических удобрений навоза, помета и стоков при инфекционных и инвазионных болезнях животных и птицы» с учетом наличия дезинфектантов и технических средств, вида и устойчивости возбудителя болезни.
При использовании хлорсодержащих препаратов дозу хлора для обеззараживания сточных вод определяют в каждом конкретном случае, исходя из хлоропоглощенности сточных вод, но не менее 100 мг/л при продолжительности контакта 2 часа.
9.4 Поверхностный сток с территории свинокомплексов промышленного типа может являться интенсивным источником загрязнения близлежащих водных объектов и местности.
Водным законодательством РФ запрещается сбрасывать в водные объекты не очищенные до установленных нормативов поверхностные воды, организованно отводимые с территории свинокомплексов промышленного типа.
Поверхностный сток с территории свинокомплексов промышленного типа должен направляться, как правило, по открытой системе водостоков в локальные хранилища (пруды-отстойники или др.) и после соответствующей обработки использоваться для орошения сельскохозяйственных угодий.
Строительство закрытой системы водостоков допускается в исключительных случаях при соответствующем технико-экономическом обосновании.
Поверхностный сток с крыш зданий и территорий, не загрязненных экскрементами животных, остатками кормов, нефтепродуктами и другими отходами, допускается использовать для полива газонов, зеленых насаждений, сельхозугодий или распределять на естественных склонах местности.
Такой поверхностный сток допускается также сбрасывать в водные объекты при условии согласования с соответствующими, специально уполномоченными на то, государственными органами в области охраны окружающей среды.
9.5 Объемы прудов-отстойников и накопителей поверхностного стокадолжны определяться количеством их поступления и графиком использования на сельскохозяйственных угодьях.
Поверхностный сток с выгульных площадок и других территорий, загрязненный экскрементами животных, после карантинирования должен использоваться на сельскохозяйственных угодьях в соответствии с требованиями НТП-АПК 1.30.02-01-06.
9.6 Концентрацию загрязняющих веществ в поверхностном стоке при проектировании следует принимать по результатам физико-химических анализов, выполненных на действующих свинокомплексах промышленного типа, расположенных в аналогичных природно-климатических условиях или определять расчетом.
При расчете концентрации загрязнений в поверхностном стоке следует учитывать:
- среднее многолетнее выпадение атмосферных осадков по
сезонам года;
- вид транспорта и интенсивность его движения по территории
животноводческого (птицеводческого) предприятия;
- время пребывания животных на открытых площадках;
- вид технических средств и режим уборки выгульных площадок,
дорог, проездов и других территорий, с которых осуществляется организованный
сбор и отвод поверхностного стока.
9.7 Для биологической обработки производственных сточных вод свинокомплексов промышленного типа рекомендуется применение биологических прудов.
9.8. Для биологической обработки производственных сточных вод, прошедших предварительное отстаивание, рекомендуется применение аэротенков, работающих в режиме продленной аэрации, или высоконагружаемых биофильтров (аэрофильтров). Расчет сооружений биологической очистки производственных сточных вод следует проводить в соответствии с СНиП 2.04.03-85.
10. Хранение навозных стоков.
10.1 Сроки хранения навозных стоков свинокомплексов промышленного типа следует определять в зависимости:
- от ветеринарно-санитарного состояния навозных стоков;
- от сроков использования их в растениеводстве;
- наличия свободных площадей сельскохозяйственных угодий для
внесения навоза и помета;
- эпизоотического состояния хозяйства;
- природно-климатических и организационно-хозяйственных
условий.
Сроки хранения навозных стоков зависят также от структуры, влажности массы и технологии переработки и хранения.
Срок хранения навозных стоков свинокомплексов промышленного типа не может быть менее 12 месяцев со дня заполнения каждого конкретного навозохранилища.
Исходя из этого применение заглубленных ванн навозоприемников для сбора навозных стоков непосредственно под станками для содержания свиней в течении 1.0-1.5 лет (т.н. «канадская технология») является экономически неоправданным, т.к. требует перекачки 10.2 Хранение навозных стоков свинокомплексов промышленного типа следует осуществлять в собственных (при свинокомплексах) или полевых хранилищах. Количество хранилищ должно быть не менее двух.
Конструкция навозохранилищ зависит от консистенции навозных стоков, гидрогеологических условий строительства, расстояний до селитебных зон.
Хранилища могут быть заглубленными, полузаглубленными и наземными, а также открытыми или закрытыми.
10.3 Для бесподстилочного навоза хранилища допускается устраивать заглубленными или наземными траншейного типа; они должны иметь ограждения, устройства для забора жидкого навоза или навозной жижи насосами, и вдоль одной из стенок иметь съезды с уклоном 0,20.
Глубину хранилищ следует назначать в соответствии с техническими характеристиками применяемых средств для выгрузки, но не более 5 м; ширину - не менее 18 м.
Днища и откосы хранилищ должны иметь гидроизоляционное покрытие.
Дно навозохранилищ не может находится ниже, чем 1м до верхней точки подъѐма поверхностных вод.
10.4 Для хранения подстилочного навоза, твердой фракции жидкого навоза на территории свинокомплексов промышленного типа следует предусматривать незаглубленные водонепроницаемые площадки, окаймленные канавами или хранилища глубиной 1,5-2,0 м.
Для сбора и удаления жижи из хранилищ следует предусматривать жижесборники.
Дно хранилищ должно иметь уклон 0,003 в сторону жижесборников.
Примечание - При технико-экономическом обосновании и соответствующем согласовании допускается хранение подстилочного навоза и компостов в полевых хранилищах с глинистым или пленочным экраном или на площадках, обустроенных на твердых грунтах и поверхностях на краях полей севооборота с соблюдением экологических и ветеринарно-санитарных требований.
10.5 Все бетонные и железобетонные конструкции днища и стен навозохранилища должны иметь защитное покрытие, обеспечивающее их долговечность в условиях контакта с навозом, относящимся к агрессивной среде средней степени.
10.6 Навозохранилища для неразделенного на фракции жидкого свиного навоза должны быть оборудованы стационарными или мобильными устройствами для перемешивания.
10.7 В целях предотвращения замерзания напорного навозопровода и исключения намораживания подачу жидкого навоза в навозохранилища следует предусматривать, как правило, снизу навозохранилища.
В навозохранилищах для хранения жидкой фракции перемешивание не предусматривается.
Не допускается применение навозохранилищ для неразделенного на фракции жидкого навоза на предприятиях мощностью 6 тыс. свиней в год и более с гидравлическими способами удаления навоза из свинарников.
10.8 Конструктивные решения навозохранилищ должны исключать фильтрацию навозных стоков.
Навозохранилища следует устраивать, как правило, из монолитного или сборного бетона или железобетона, пленочных полимерных гидроизоляционных материалов толщиной не менее 1,5 мм или их комбинаций.
Пример устройства бетонного заглубленного навозохранилища приведен на рис 23 и 24.

Рис. 23 План бетонного заглубленного навозохранилища на 1300 куб. м на отметке -5,000 племенной фермы (Краснодарский кр.).

Рис.24 Разрезы бетонных заглубленных навозохранилищ по 1300 куб. м каждое племенной фермы (Краснодарский кр.).
В основном наибольшее применение находят навозохранилища с пленочным покрытием.
Преимущества пленочных навозохранилищ:
1. Только пленочные лагуны могут обеспечить 100% противофильтрационный барьер (в связи с пористой структурой бетонные навозохранилища сильно уступают).
2. Стоимость пленочных лагун почти в 10 раз ниже аналоговых из бетона или металла.
3. Высокая скорость монтажа и возможность проводить работы и в холодное время года.
4. Высокая ремонтопригодность.
5. Длительный срок службы обеспечивается инертностью пленочных покрытий к агрессивной среде навозных стоков.
6. Нет ограничений по размерам навозохранилищ.
Рис. 25 Пример пленочного навозохранилища. Общий вид.
Навозохранилище (рис. 25 и 26) представляет собой котлован, выкопанный в земле. Грунт, вынутый из котлована, используется для образования замкнутой дамбы по периметру. Заглубление относительно уровня земли не превышает 1300 мм, общая глубина от верха дамбы достигает 5000 мм.
При устройстве лагун используется пленка –Геомембрана «AGRU»:
– нижняя пленка Геомембрана «AGRU» HPDE толщиной 1,5 мм
является противофильтрационным экраном и защищает от попадания навоза в почву;
– верхняя пленка Геомембрана «AGRU» FPP толщиной 1 мм
защищает навоз от потери азота и разжижения атмосферными осадками.
Геомембрана «AGRU» - имеет все сертификаты позволяющие использовать ее в качестве противофильтрационного экрана в пленочных навозонакопителях.
Рис. 26 Пример устройства пленочного навозохранилища
Уничтожение возбудителей болезней и семян сорняков в навозохранилищах происходит в процессе анаэробного сбраживания. Сброженные в анаэробном процессе навозные стоки богаты питательными веществами в легкоусвояемой форме, не имеют запаха и практически дегельмитизированы, что решает проблемы экологического и агрохимического характера.
В связи с этим на ферме должно быть минимум две лагуны, обеспечивающие последовательное накопление, 12-месячное выдерживание (обеззараживание) и выгрузку для весенне-осеннего внесения на поля годового объема навоза.
Подача навоза в лагуну производится насосом, установленным в навозосборном приемнике (КНС) здания или группы зданий свинарников, по ПВХ трубопроводу, проложенному ниже глубины промерзания грунта и проходящему под лагуной на 450 мм ниже ее дна. Трубопровод выводится в центре лагуны и оканчивается специальным фланцем, позволяющим выкачивать навоз даже из почти пустого навозохранилища. Участок трубопровода, проложенного непосредственно под лагуной, также используется для выкачивания навоза самовсасывающими бочками. Выкачивающий трубопровод отводится от подающей трубы при помощи тройника и выводится за наружный периметр дамбы к выгрузной станции. Выгрузная станция устраивается в месте удобном для применения системы утилизации навоза на основе гибких шлангов, или обеспечивающем подъезд тракторов с самовсасывающими бочками. Таким образом, полностью исключается попадание навоза на землю и загрязнение прилегающих территорий.
Следует иметь в виду, что способ устройства заливного трубопровода следует (нижняя или верхняя заливка) необходимо определять исходя из существующих климатических условий расположения свинокомплексов, предотвращая возможное промерзания подводящего трубопровода в период начала заполнения навозохранилищ.
10.9 Выгрузку подстилочного навоза из хранилищ следует осуществлять мобильными погрузчиками, бесподстилочного - мобильными самозагружающимися цистернами-разбрасывателями типа МЖТ или насосами типа НЖН-200, НЦН-Ф-100/30 (наружный), НЦН-Ф-80/30П (плавающий), РТС (погружной) и др., а также мобильными насосными агрегатами с функцией перемешивания и измельчения.
10.10 Закрытые резервуары насосных станций (приемные емкости) и хранилища навоза следует относить к взрывоопасным (категория А).
11 Использование обезвреженных навозных стоков.
11.1 Все виды навоза следует использовать для удобрения земельных угодий, повышения плодородия почв и урожайности сельскохозяйственных культур.
Удобрительную ценность навоза и помета следует определять по содержанию питательных веществ, количество которых для предварительных расчетов приведено в таблице 9.
Таблица 9 - Удобрительная ценность свежих навоза и помета от массы сухого вещества
|
Наименование |
Содержание в массе сухого вещества, % | ||
|
Навоз свиней: |
общий азот (N) |
фосфор (Р205) |
калий (К20) |
|
общее содержание |
6,0 |
3,2 |
2,5 |
|
- в жидкой фракции |
3,3 |
0,32 |
1,25 |
|
- в твердой фракции |
2,7 |
2,88 |
1,25 |
|
Примечания 1 При определении удобрительной ценности навоза допускается рассчитывать количество питательных веществ, исходя из содержания в нем жидкости и сухого вещества. |
|||
Результаты предварительных расчетов по таблице 6 должны уточняться на основании результатов агрохимических анализов состава навоза.
11.2 Нормы и сроки внесения навоза следует устанавливать с учетом количества содержащихся в нём питательных веществ и в зависимости от природно-климатических, почвенных условий, принятых севооборотов, структуры посевов и требуемого уровня урожайности сельскохозяйственных культур.
11.3 Жидкий навоз свиней, осадок из отстойников, избыточный активный ил следует вносить путем запахивания под кормовые культуры, используемые для приготовления силоса, сенажа и травяной муки.
Примечание - Осадок отстойников, фугат и избыточный активный ил следует вносить на поля под вспашку один раз в четыре года, среднегодовую нагрузку принимать 200 м3/га.
11.4 Жидкий навоз, навозные стоки и их жидкую фракцию следует использовать в качестве удобрения многолетних трав на лугах и пастбищах при внутрипочвенном способе внесения с применением агрегатов ABB и АВМ, оборудованными устройствами, обеспечивающими внесение навоза на глубину не менее 17 см и исключающими загрязнение навозом поверхности почвы.
11.5 Расчет оптимальной нормы внесения жидкого навоза, навозных стоков и их жидкой фракции под сельскохозяйственные культуры следует производить в соответствии с рекомендациями «Дозы и сроки внесения бесподстилочного навоза».
Ориентировочные нормы, сроки внесения и способы заделки бесподстилочного навоза определяются по табл. 10.
Таблица 10
|
Сельскохозяйственная культура |
Годовая норма |
Время внесения |
Способ заделки | |
|
азота, кг/га |
навоза, т/га | |||
|
1 |
2 |
3 |
4 |
5 |
|
1 Озимые зерновые |
120-140 |
30-35* |
Перед основной обработкой (вспашкой) |
Под плуг |
|
2 Картофель столовый |
120-200 |
38-50* |
Осенью при зяблевой вспашке или весной перед весенней перепашкой |
То же |
|
3 Кукуруза на зеленый корм и силос |
240-400 |
60-100 |
Осенью перед зяблевой обработкой или весной перед предпосевной обработкой |
Под плуг, дисковый лущильщик |
|
4 Сахарная свекла |
200-300 |
50-75 |
То же |
То же |
|
5 Кормовая и сахарная свекла на корм скоту |
200-400 |
50-100 |
-/- |
-/- |
|
6 Многолетние злаковые и злаковобобовые травы на сено и зеленый корм |
240-320* |
60-80 |
Перед посевом и после укоса в виде удобрительного полива или путем разбрызгивания по поверхности почвы |
Боронование после укосов |
|
7 Естественные сенокосы и пастбища |
200-240** |
50-60 |
Рано весной и после укоса или стравливания, вразброс или внутрипочвенно, в виде удобрительных поливов |
То же |
|
8 Орошаемые культурные пастбища |
300-360** |
75-90 |
То же |
-/- |
|
9 Однолетние травы |
120-180 |
30-45 |
Осенью под зябь или весной под предпосевную обработку |
Под плуг, дисковый лущильщик |
|
10 Озимые промежуточные культуры |
140-180 |
35-45 |
Под основную или предпосевную обработку |
То же |
|
х Дозы навоза рассчитаны при содержании азота 0,4%. х Годовую норму вносят дробно равными частями в 2-4 срока. |
||||
Примечание - Для ориентировочных расчетов необходимых площадей сельскохозяйственных угодий на стадии выбора площадки под строительство животноводческих комплексов и ферм допускается норму внесения в почву бесподстилочного навоза и навозных стоков по азоту устанавливать: при орошении - до 300 кг/га; без орошения - до 200 кг/га.
11.6 Сроки и способы орошения жидкой фракцией навоза, содержащей биогенные вещества, сельскохозяйственных угодий должны приниматься в соответствии с НТП-АПК 1.30.02-01-06, а также с учетом «Ветеринарносанитарных правил по использованию животноводческих стоков для орошения и удобрения пастбищ».
11.7 Оптимальные сроки внесения жидкого навоза и навозных стоков должны быть приближены к периоду потребности сельскохозяйственных культур в питательных веществах.
11.8 Зимнее внесение бесподстилочного навоза в почву допускается при соответствующем согласовании с органами государственного ветеринарного, санитарного надзора и экологического контроля.
При этом для исключения поступления навозных стоков, особенно в весенний паводковый период, в поверхностные водные объекты и на окружающие территории, поля для внесения навоза и его фракций обустраивают на местности с ровным рельефом, специально подготовленные и спланированные для этой цели.
Эффективность зимнего внесения бесподстилочного навоза в 1,5 раза ниже его внесения в период вегетации растений и сопряжена с высоким риском загрязнения окружающей среды.
Зимнее внесение обеззараженного жидкого навоза проводят на заранее подготовленные поля, с которых исключается сток талых, загрязненных навозом вод в водоемы.
Внесение следует проводить при температуре воздуха до минус 10°С и высоте снежного покрова до 20 см.
11.9 Подстилочный навоз, твердую фракцию бесподстилочного навоза и компосты следует использовать на более удаленных полях под озимые и пропашные культуры, а также в паровых полях.
11.10 Эффективным способом использования бесподстилочного навоза является применение его под сидеральные культуры, возделываемые как в самостоятельных, так и в промежуточных посевах. Это позволит расширить сроки использования бесподстилочного навоза, увеличить поступление в почву органического вещества и предотвратить загрязнение продукции нитратами.
12.11 При расчете потребных площадей сельскохозяйственных угодий для использования навоза следует учитывать потери общего азота, происходящие при обработке, хранении и внесении их в почву, приведенные в таблице 11.
Таблица 11
|
Вид навоза |
Потери общего азота, % |
Метод внесения и заделки в почву |
||
|
при хранении в течение 6 мес. |
при биотермической обработке |
при внесении |
||
|
Подстилочный навоз, помет и твердая фракция навоза |
10 |
30 |
5 |
Вспашка |
|
Жидкая фракция бесподстилочного навоза и помета |
10 |
- |
10 |
Орошение |
|
Торфонавозные компосты |
1 |
20 |
3 |
Вспашка |
|
Примечания 1 Потери органического вещества при биотермической обработке подстилочного навоза и твердой фракции навоза составляют 20-30%, торфонавозного компоста - 10%. 2 Потери при внесении указаны при вспашке (заделке) навоза в день разбрасывания. При вспашке через сутки потери составляют 15%, через 2 суток - 20%, через 4 суток - 25%. |
||||
11.12 В подготовленном к использованию навозе не допускается содержание механических включений, размеры частиц которых в зависимости от вида навоза и способа их внесения в почву, превышают величины, приведенные в таблице 12.
Таблица 12
|
Вид навоза |
Допустимый размер включений, мм |
|
Подстилочный и полужидкий навоз, помет, компосты: |
|
|
- с высокой удельной массой |
100 |
|
- с низкой удельной массой |
150 |
|
Жидкий навоз и навозные стоки: |
|
|
- для внесения дождевальными установками |
10 |
|
- для внесения мобильным транспортом: |
|
|
а) внутрипочвенным способом |
10 |
|
б) поверхностным способом |
30 |
|
- для внесения способом полива при вспашке, по плужным бороздам |
30 |
11.13 Большое значение имеют вид и состав выращиваемых сельскохозяйственных культур на орошаемых системах с использованием навозных стоков. На мелиоративных системах с использованием навозных стоков от свиней рекомендуются севообороты зернотравяные. В зернотравяных севооборотах доля зернофуражных культур составляет до 50%. При этом площадь полей орошения увеличивается до 30% в связи с уменьшением выноса зерновыми культурами биогенных веществ.
11.14 При использовании жидкого навоза и навозных стоков на орошение важное значение имеет безопасная концентрация общего азота в поливной жидкости. Использованная концентрация общего азота в навозных стоках составляет:
- для многолетних и злаковых трав второго и последующих
годов -2,5 г/л;
- для люцерны и клевера красного - 1,6 г/л;
- для кукурузы - 1,7 г/л;
- для подсолнечника - 1,8 г/л;
- для зернофуражных культур - 2,6 г/л;
- для сорго-суданкового гибрида - 3,1 г/л.
Навозные стоки, имеющие более высокую концентрацию, перед дождеванием следует разбавлять водой.
11.15 Орошение навозными стоками следует прекращать за три недели до сбора урожая.
Одной из самых эффективных систем внесения жидких органических удобрений на поля является шланговая система.
Настоящими предложениями предусмотрена шланговая система производства фирмы Hydro-Eng (США) – мирового лидера в разработке и производстве шланговых систем с 1978г.
Основные характеристики системы:
• свиной навоз с концентрацией ≈ 8%;
• дальность перекачки до 3600 м;
• внос инжекторным культиватором с запашкой.
Система по варианту 2 включает в себя:
• насосную станцию с самовсасывающим насосом и системой
очистки шлангов;
• 2 шт. транспортировщика шлангов 2-х осной компоновкой с
тормозами на все колеса, гидравлическим приводом, коробкой передач и способной
передвигаться с большой скоростью и максимально быстро разматывать и сматывать
шланги;
• шланги повышенной прочности и износоустойчивости;
• специальной рамой для соединения с культиватором и навески
на трактор, гидравлическим питателем.
Для эксплуатации данной системы требуется несколько человек и дополнительно трактор для транспортировки и привода компрессора для очистки шлангов. Гарантия 24 месяца.

12. Ветеринарно-санитарные требования к проектированию систем удаления и подготовки к использованию навозных стоков.
12.1 В подготовленном к использованию навозных стоках должны отсутствовать возбудители инфекционных и инвазионных инфекционных болезней, жизнеспособные семена сорных растений и нормализовано количество биогенных и других веществ, в соответствии с ветеринарно-санитарными, экологическими, агрохимическими требованиями. Ветеринарно-санитарные и агрохимические требования и правила отражены в документах: «Ветеринарно-санитарные правила подготовки к использованию в качестве органических удобрений навоза, помета и стоков при инфекционных и инвазионных болезнях животных и птицы», ОСТ 10-118-96, ОСТ 10-119-96.
12.2 В проектах свинокомплексов промышленного типа для систем сооружений подготовки навозных стоков к использованию следует предусматривать карантинирование всех видов навоза, навозосодержащего поверхностного стока, применять эффективные технологии и технические средства для их обеззараживания (дезинфекция, дезинвазия) при контаминации отходов возбудителями инфекционных и инвазионных болезней, особенно передаваемых от животных к человеку.
Срок карантинирования с целью выявления инфицированности навоза и помета возбудителями инфекционных и инвазионных болезней следует принимать не менее 6 суток.
Продолжительность периода эпизоотии на предприятиях следует принимать не менее 45 суток с начала ее возникновения.
12.3 Для карантинирования подстилочного навоза и твердой фракции навоза должны быть предусмотрены площадки секционного типа с твердым покрытием. Для карантинирования бесподстилочного навоза, помета и их жидкой фракции - емкости секционного типа.
Карантинирование навоза допускается в секционных при-фермских навозохранилищах и прудах-накопителях.
12.4 Контроль качества обеззараживания всех видов навоза осуществляют соответствующие службы государственного ветеринарно-санитарного и санитарно-эпидемиологического надзора в соответствии с:
- «Инструкцией по лабораторному контролю очистных сооружений
на животноводческих комплексах»;
- «Ветеринарно-санитарными правилами подготовки к
использованию в качестве органических удобрений навоза, помета и стоков при
инфекционных и инвазионных болезнях животных и птицы».
12.5 Степень обеззараживания (дезинфекции, дезинвазии) всех видов навоза определяют:
- по отсутствию или гибели возбудителей паразитарных
болезней (яиц и личинок гельминтов, цист и социст паразитических простейших);
- по гибели индикаторных (санитарно-показательных)
микроорганизмов в 10 см3 пробы навоза, контаминированного малоустойчивыми
возбудителями болезней (по выживаемости бактерий из группы кишечных палочек),
возбудителей повышенной устойчивости (по стафилококкам), спорообразующей
микрофлоры (по микробам из рода бациллюс). При кантоминации навоза
возбудителями туберкулеза качество обеззараживания их контролируют по
выживаемости стафилококков и энтерококков, т.к. сапрофитные микобактерии не
только сохраняют жизнеспособность более длительно, чем патогенные виды, но и
размножаются при длительном хранении органических отходов.
12.6 Для исключения распространения в окружающей среде возбудителей болезней, накапливаемых в осадочной части навозохранилищ и прудовнакопителей, выгрузку навозных стоком или забор жидкой фракции следует производить выше поверхности дна пруда не менее, чем на 50 см, или предусмотреть соответствующие барьеры перед выгрузными приямками.
12.7 Выбор способа обеззараживания навоза и навозных стоков осуществляется по указанию ветеринарной службы с учетом опасности возникшей эпизоотической ситуации, вида возбудителя заболевания, наличия и вида химических реагентов и технических средств.
12.8 Обеззараживание жидкого навоза, навозных стоков и жидкой фракции навоза химическим методом следует проводить, исходя из норм расхода реагентов на 1 м3 навоза: аммиака - 30 кг (время контакта - 3-5 суток), формальдегида - 3 кг (время контакта - 3 суток при гомогенизации в течение 6 часов).
Примечания
1 Жидкий аммиак транспортируется в специальных автоцистернах.
Обрабатываемый аммиаком жидкий навоз покрывают эмульсионно-дезинфицирующим слоем пленки (незонол, масляный ангидрид). Расход препарата 0,1-0,3% к обрабатываемой массе.
2 Обработку навоза и помета формальдегидом допускается осуществлять в теплый период года.
12.9 Обеззараживание жидкого навоза, навозных стоков, жидкой фракции, осадка отстойников и избыточного активного ила термическим способом следует проводить при температуре 130°С, давлении 0,2 МПа и экспозиции 10 мин.
12.10 Естественное биологическое обеззараживание подстилочного и бесподстилочного навоза осуществляется путем выдерживания в секционных навозохранилищах или прудах-накопителях в течение 12 месяцев.
Для этой цели подстилочный навоз, полужидкий, выдерживаемый в хранилищах, укрывают слоем торфа или обеззараженной массой навоза и помета толщиной 10-20 см.
Следует учитывать, что естественный биологический метод неприемлем для обеззараживания навоза, контаминированного устойчивыми микроорганизмами (возбудители туберкулеза и др.), а также для зон с низкими температурами, где патогенные микроорганизмы выживают значительно больше указанных сроков.
12.11 Подстилочный навоз, контаминированный спорообразующими возбудителями инфекций, сжигают.
12.12 Жидкую фракцию навоза, контаминированную неспорообразующими патогенными микроорганизмами, обеззараживают химическим способом.
12.13 При разделении жидкого навоза на фракции, жидкую фракцию обеззараживают или естественным способом - путем длительного выдерживания, или химическим способом, а твердую фракцию - биотермическим способом.
12.14 Для биотермического обеззараживания твердой фракции навоза на площадку с твердым покрытием укладывают солому, торф, опилки или обеззараженный навоз слоем 30-40 см.
На влагопоглощающие материалы рыхло укладывают твердую фракцию навоза влажностью до 80% в штабеля высотой до 3 м, шириной до 5 м, произвольной длины.
Бурты укрывают торфом, соломой, или навозом слоем 15-20 см.Началом срока обеззараживания твердой фракции навоза считают время достижения температуры в средней части штабеля на глубине 1,5-2,5 м до 55-60°С.
Время выдерживания навоза в штабелях после достижения заданной температуры должно составить: в теплое время года - 2 месяца, в холодное -3 месяца.
Выделяющуюся из штабеля навоза жидкость вместе с атмосферными осадками собирают в жижесборник и обеззараживают химическим способом.
12.15 Обеззараживание жидкого навоза от неспорообразующих возбудителей инфекционных болезней допускается осуществлять в метантенках.
12.16 Количество метантенков для обеззараживания жидкого навоза в случаях возникновения инфекционных заболеваний должно быть не менее двух, чтобы обеспечить эксплуатацию метантенков в периодическом режиме.
12.17 Обеззараживание жидкого навоза в метантенках в термофильном режиме сбраживания достигается при температуре 55°С и экспозиции не менее трех суток без добавления свежих порций навоза.
При попадании контаминированного сброженного навоза в накопители обеззараживание достигается при выдерживании сброженной массы в открытом навозохранилище в течение 6 месяцев.
12.18 Обеззараживание навоза в мезофильном режиме эксплуатации метантенков обеспечивается при температуре 3-38°С и экспозиции 10-15 суток или температуре 40-42°С и экспозиции 7-9 суток.
12.19 Навоз и помет влажностью до 75% допускается обеззараживать в аэробных биоферментерах при температуре ферментации 65°С и экспозиции 7-10 суток.
12.20 Для биотермического обеззараживания твердой фракции навоза и компоста влажность должна составлять не более 75%, что обеспечит доведение температуры по всему объему массы в штабеле до 55-60°С при сроке выдерживания массы в штабелях не менее 2 месяцев в летний период и 3 месяца - в зимний период.
Примечания
1 При отсутствии активных термобиологических процессов и невозможности подъема температуры выше 40°С твердую фракцию навоза и компост при контаминировании неспорообразующими (инфекционными) возбудителями болезней для обеззараживания выдерживают в течение 12 месяцев, а при туберкулезе - 18 месяцев.
2 Для обеспечения требуемой для биотермического обеззараживания температуры соотношение между компостируемой массой и влагопоглощающими материалами должно быть не менее 2:1. При этом штабель укладывается рыхло.
3 Для предотвращения распространения возбудителей инфекционных болезней переукладка (аэрация) штабеля не производится.
12.21 При возникновении на свинокомплексах промышленного типаэпизоотий, вызванных спорообразующими возбудителями особо опасных болезней обработка навоза запрещается. Подстилочный навоз и осадки отстойников сжигают, полужидкий, жидкий навоз и навозные стоки подвергают термическому обеззараживанию.
12.22 Дегельминтизацию (дезинвазию) всех видов навоза и его фракций следует проводить биологическим, биотермическим или химическим методами.
12.23 Биологический метод дегельминтизации (дезинвазии) предусматривает выдерживание подстилочного навоза, жидкого и полужидкого навоза в открытых хранилищах на свиноводческих предприятиях - в течение 12 месяцев.
12.24 Биологическая дегельминтизация жидкой фракции свиного навоза осуществляется выдерживанием в секционных прудах-накопителях:
- в весенне-летний период - в течение не менее 6 месяцев;
- в период осеннего накопления - в течение 9 месяцев.
12.25 Дегельминтизация твердой фракции навоза, компоста, подстилочного навоза влажностью до 70% обеспечивается биотермическим способом при выдерживании в буртах в весенне-летний период не менее 1 месяца, в осенне-зимний период - не менее 2 месяцев.
При влажности 75%: в весенне-летний период не менее 3 месяцев, а в осенне-зимний период - не менее 6 месяцев
Параметры буртов: высота по верху - 2-2,5 м ширина – до 3-3,5 м , длина - произвольная.
Дегельминтизацию навоза биотермическим способом допускается проводить на подготовленных полевых грунтовых площадках.
12.26 Дегельминтизация твердой фракции свиного навоза влажностью до 75% достигается выдерживанием ее в отстойниках-накопителях периодического действия в весенне-летний период в течение 3,5 месяцев.
12.27 Дегельминтизация массы при компостировании достигается при условии развития биотермических процессов во всех слоях массы навоза:
- жидкого;
- полужидкого;
- подстилочного при послойной, двух или одноприемной
закладке смеси с добавлением различных, в т.ч., нетрадиционных компонентов
(кора древесины и др.).
При этом экспозиция дегельминтизации должна составлять не менее 1,5 месяцев, а началом процесса следует считать достижение температуры в верхних и нижних слоях массы 35-38°С и в центре - 50°С.
12.28 Дегельминтизация (дезинвазия) твердого подстилочного навоза, получаемого на свиноводческих фермах и крестьянских (фермерских) хозяйствах, осуществляется при складировании навоза в бурты:
- высотой - не более 1,5 м;
- шириной в основании - 2,5-3,0 м;
- выдерживание их - не менее 12 месяцев.
Для сокращения сроков дезинвазии навоза данной структуры до 7-8 месяцев необходима перебивка (перемешивание) массы 1-2 раза в весеннелетний период.
13. Охрана окружающей среды.
13.1 В соответствии с требованиями Федерального закона «Об охране окружающей среды» при проектировании, строительстве и эксплуатации систем удаления и подготовки к использованию навозных стоков должны соблюдаться требования в области охраны окружающей среды, проводиться мероприятия по охране земель, почв, водных объектов, растений, животных
и других объектов. Свиноводческие комплексы промышленного типа являются потенциальными источниками загрязнения водных объектов и почвы окружающих территорий органическими массами, содержащими биогенные элементы, и распространения возбудителей болезней, содержащихся в навозе, навозных стоках и производственных сточных водах.
13.2 При проектировании систем удаления и подготовки к использованию навоза необходимо учитывать следующих требования по охране компонентов окружающей среды от загрязнения.
Проекты систем должны содержать данные о количестве исходного и подготовленного навоза, навозных стоков, продуктов их переработки, указания о способах, направлениях использования и утилизации.
Примечания
1 Площадь сельскохозяйственных угодий, необходимая для использования навоза, рассчитывается с учетом типа и размера свинокомплексов промышленного типа, количества питательных веществ, содержащихся в навозе, вида возделываемых культур, потребности их в питательных веществах, выноса этих веществ с урожаем сельскохозяйственных культур, доз, сроков внесения и способов заделки их в почву.
2 Конструктивные решения сооружений сбора, накопления и хранения всех видов навоза и поверхностного стока, должны обеспечивать их герметичность и исключать процессы фильтрации жидкости в грунт и инфильтрации грунтовых вод.
3 Не допускается размещение сооружений и систем подготовки и использования всех видов навоза и поверхностных стоков на территориях первого и второго поясов санитарной охраны источников водоснабжения, источников минеральных вод и санитарной зоны курортов.
4 Не допускается строительство новых, расширение существующих систем удаления и подготовки навоза к использованию на территории санитарно-защитных зон между предприятиями и поверхностными водными объектами.
5 Запрещается сброс в водные объекты неочищенных до требуемых параметров навозных и производственных стоков.
6 Проекты нового строительства и реконструкции систем удаления и подготовки всех видов навоза к использованию подлежат согласованию с органами государственного ветеринарного, санитарного надзора и экологического контроля.
13.3 Территория для размещения сооружений подготовки к использованию навоза и помета должна соответствовать требованиям действующих норм и правил.
13.4 Площадки сооружений должны иметь зооветеринарные и санитарные защитные разрывы от территории предприятий и жилой застройки. По периметру площадок сооружений следует предусматривать посадки зеленых насаждений, экранирующие и фильтрующие вредные выбросы.
13.5 Здания и сооружения на площадке следует ориентировать длинной стороной вдоль преобладающих ветров, обеспечивающих сквозное проветривание пространства.
13.6 Технологии обработки и использования навоза и сточных вод, должны обеспечивать уменьшение выбросов загрязняющих веществ в атмосферу за счет:
- проектирования минимальных площадей открытых накопителей
навоза и сточных вод;
- применения биологических, химических, биотермических и
комбинированных методов обработки навоза и сточных вод;
- внесения в навоз и сточные воды различных дезодорирующих
добавок (клиноптиломита, гашеной и негашеной извести, железного купороса,
персульфата натрия, древесных опилок и др.).
13.7 Определяющими веществами при расчете рассеивания загрязнений в атмосфере следует принимать аммиак и сероводород.
При выбросе в атмосферу вентиляционного воздуха, содержащего вредные вещества, следует предусматривать рассеивание пылегазовых смесей, не допуская превышение предельно допустимых концентраций.
13.8 При необходимости для улавливания загрязняющих веществ или полного исключения их выбросов в атмосферный воздух следует предусматривать очистку вентиляционных выбросов с помощью механических или биологических фильтров, облучением ультрафиолетовыми лучами или озоном, теплотехническим способом в высокотемпературных печах или топке котельной, адсорбционным или абсорбционным способами и т.п.
13.9 Площадки сооружений по обработке и подготовке к использованию навоза и сточных вод следует размещать:
- ниже населенных пунктов и водозаборных сооружений по
течению поверхностных водостоков;
- ниже сооружений водоснабжения по рельефу местности.
13.10 На свинокомплексах промышленного типа, как правило, должны предусматриваться системы бытовой, производственной и дождевой канализации с очистными сооружениями, обеспечивающими показатели, допустимые для сброса на земледельческие поля орошения (ЗПО) или в водные объекты.
13.11 Свиноводческие комплексы промышленного типа должны быть обеспечены площадями сельскохозяйственных угодий, достаточными для использования всего годового объема получаемых органических удобрений или должна предусматриваться обработка навоза и сточных вод, обеспечивающая значительное уменьшение объемов получаемых удобрений, с возможностью вывоза их на дальние расстояния.
13.12 При проектировании крупных свиноводческих комплексов с гидросмывным способом удаления навоза из свинарников и отсутствием достаточных площадей ЗПО, необходимо предусматривать биологическую очистку навозных стоков до показателей, позволяющих сбрасывать их на очистные сооружения городов (промышленных предприятии) или в водные объекты.
13.13 На свиноводческих комплексах промышленного типа следует предусматривать оборотные системы водоснабжения, системы повторногоиспользования очищенных сточных вод, максимально сокращающие сброс их в водные объекты.
13.14 Все виды навоза и сточных вод, вносимые в почву в качестве органического удобрения, не должны содержать патогенные микроорганизмы.
13.15 В проектах необходимо предусматривать меры, предотвращающие аварийные сбросы сточных вод:
- устройство дублирующих напорных трубопроводов,
оборудования, сооружений;
- обеспечение электроснабжения оборудования от двух
независимых источников;
- применение оборудования и трубопроводов, стойких к
коррозионному и абразивному воздействию сточных вод;
- устройство автоматического контроля и сигнализации
превышения уровня жидкости в емкостных сооружениях;
- устройство автоматического включения резервного
оборудования при выходе из строя рабочего.
13.16 На свиноводческих комплексах промышленного типа, имеющих очистные сооружения, необходимо предусматривать систему контроля за количеством и качеством поступающих и очищенных сточных вод, проводить постоянные лабораторные анализы их физико-химического и бактериологического состава.
13.17 Для контроля за химическим и бактериологическим составом грунтовых вод при использовании навоза, помета и сточных вод на ЗПО следует предусматривать устройство наблюдательных скважин.
13.18 Все емкостные сооружения надлежит предусматривать водонепроницаемыми.
13.19 Отработанные, не используемые водозаборные скважины, расположенные на площадках сооружений по обработке и использованию навоза и сточных вод, необходимо затампонировать.
13.20 Площадки сооружений по обработке и подготовке к использованию навоза и сточных вод следует размещать на непригодных для ведения сельского хозяйства землях и на территориях, где отсутствуют полезные ископаемые.
13.21 На участках расположения сооружений необходимо предусматривать восстановление (рекультивацию) нарушенного плодородного слоя почвы.
13.22 Для размещения сооружений по обработке и подготовке к использованию навоза и сточных вод следует выбирать площадки, свободные от ценных пород деревьев и кустарников.
13.23 На участках строительства сооружений и прилегающих территориях следует максимально сохранять существующую растительность. Ценные породы деревьев и кустарников в возрасте 5-8 лет, попавшие под застройку, следует пересаживать в специально отведенные места.
13.24 Перед началом строительства сооружений необходимо создавать условия для миграции диких животных и птиц с площадок по обработке и подготовке к использованию (в том числе и ЗПО) навоза и сточных вод.
